VALIKKO
Minnalla oli ajatus kaksiosaisesta talosta, jossa on korkea osa sekä matalampi makuuhuonesiipi. Arkkitehti Mikki Ristola aloitti kohteen suunnittelun tältä pohjalta. Päärakennuksen sijoittelu tontilla oli ilmeinen mm. viereisen joen vuoksi.
Luonnonsuojelualueen vieressä sijaitsevalta tontilta on yhteen suuntaan pitkä näkymä suoraan merelle ja hieno näkymä kahteen suuntaan ympäröivään kaislikkoiseen rantaan. Näkymät on huomioitu kohteen arkkitehtisuunnittelussa.
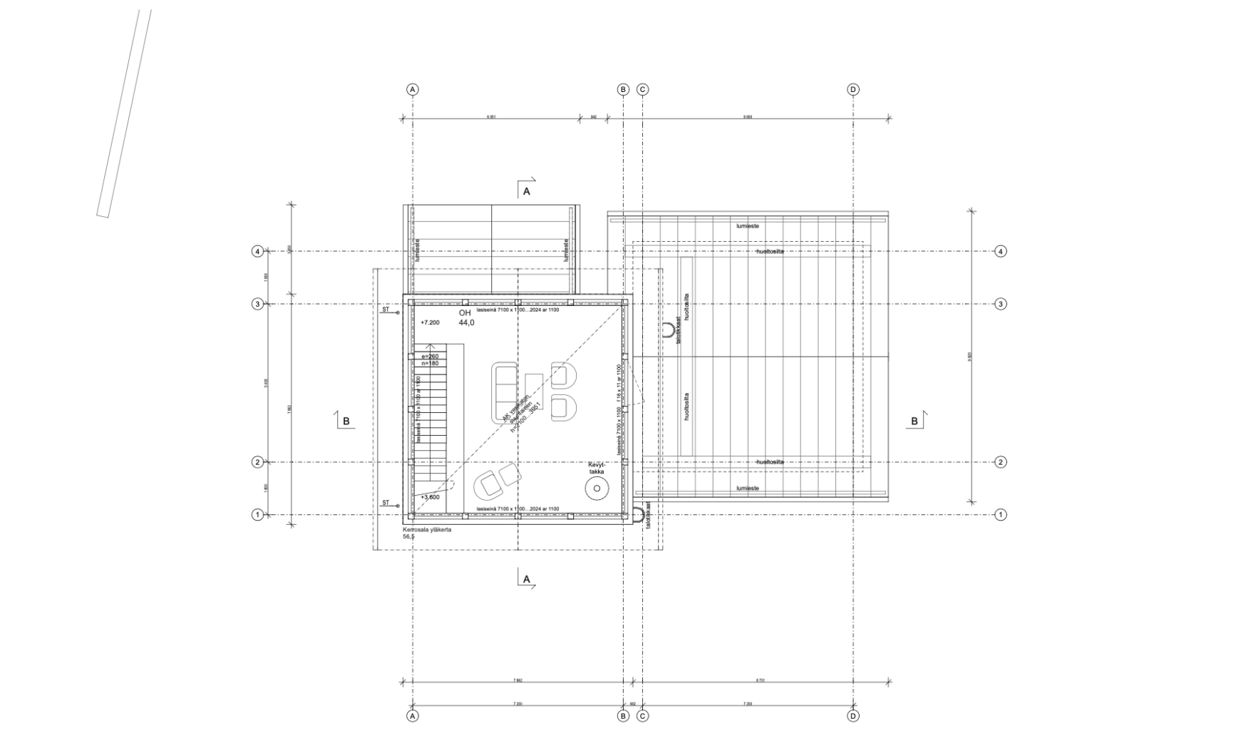
Tontille rakentuva kaksiosainen harjakattoinen päärakennus sijaitsee tontin korkeimmalla kohdalla ja Minnan ideoimana se rakentuu kokonaan pilarien päälle. Näin se on suojassa kosteudelta ja vieressä kulkevalta joelta, joka tulvii usein keväisin. Taloa ympäröivien kaiteiden käyttämistä haluttiin kuitenkin välttää, joten terassista tehtiin porrastettu. Talon alakerrassa sijaitsee iso tupakeittiö, ja talon matalassa osassa on makuuhuonesiipi ja sauna. Yläkerrassa on iso olohuonetila, jossa on ikkunat kaikkien seinien pituudelta kaikkiin suuntiin.
Päärakennus on kauttaaltaan vaaleanpunainen ja siinä on piparkakkumaisia deltaljeja. Talo on persoonallinen yhdistelmä hurmaavaa vaaleapunaista piparkakkutaloa ja perinteistä tyyliä. Mm. harmaat peltiset harjakatot ovat poikittain toisiinsa nähden, mikä on perinteistä saaristorakentamista. Lisäksi tontille tulee autotalli ja pieni rantarakennus, joiden ulkonäkö mukailee päärakennusta.

