Finnlogin arkkitehtuuri: koti perheelle, jonka yhteinen aika on pyhää

Finnlogin arkkitehti Liis Vavulski auttoi toteuttamaan perheen vision heidän unelmakodistaan.

Arkkitehdin tehtävänä oli luoda koti, joka täyttäisi sekä asiakkaan toiveet että tontin ominaisuuksista johtuvat suunnitteluehdot.

Lopputulos on luonnosta inspiroitunut moderni koti, jossa on monia erilaisia mahdollisuuksia rentoutumiseen ja perheen yhdessäoloon.

Perheen toiveet unelmakodista

”Perheelle oli tärkeää, että kodissa olisi paljon erilaisia paikkoja, joissa he voisivat viettää aikaa yhdessä, mutta samalla myös riittävästi yksityisyyttä”, arkkitehti Liis Vavulski kuvailee perheen toiveita.

Oli tärkeää suunnitella alueita, jotka ovat riittävän erillään, mutta kuitenkin yhteydessä toisiinsa, tarjoten perheenjäsenille sekä omaa aikaa että mahdollisuuden olla yhdessä ystävien kanssa.

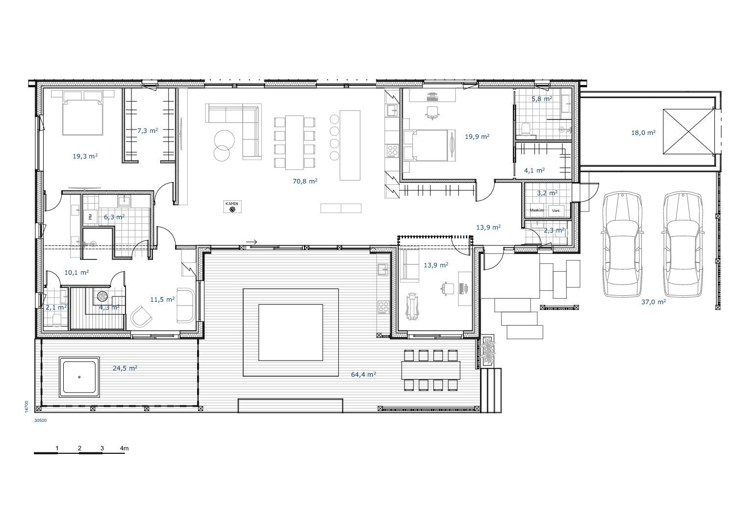
Monimuotoinen tontti

Tontin sijainti aiheutti haasteita suunnittelulle.

Tontti sijaitsi alueella, jossa tie kulkee suoraan talon edestä. Yksityisyys varmistettiin liuskekivielementtien ja ajotien reunaan istutettujen puiden avulla.

Lisäksi rakennusmääräykset edellyttivät, että rakennuksen sokkelin tuli olla 60 cm korkeudella. Tämä luo talolle luonteenomaisen porrastetun sisäänkäynnin.

Käytännöllinen tilasuunnittelu

Rakennuksen kaksi siipeä muodostavat yksityisen sisäpihan, johon avautuu näkymä olohuoneesta. Lämpimänä vuodenaikana perhe ja vieraat kutsutaan koolle terassin oleskelualueelle. Terassilta löytyy myös suojaisa ruokailutila.

Rakennuksen siivet palvelevat eri tarkoituksia. Toisessa sijaitsee rauhallinen työhuone, jota voi käyttää hiljaisena työ- tai lukupaikkana. Talon toisessa päässä on sauna rentoutumisalueineen, josta löytyy lasiseinien taakse sijoitettu poreallas.

Kaikki nämä elementit varmistavat, että perheellä on kodissaan mahdollisimman mukavaa viettää aikaa yhdessä, mutta myös riittävästi tilaa omassa rauhassa rentoutumiseen.

Koti, jossa jokainen hetki on arvokas!

Finnlog-talo ei ole vain rakennus - se on lämmin ja viihtyisä koti, jossa voit elää arkea kuin juhlaa.