Finnlogin arkkitehtuuri: tilava monitoimikoti

Finnlogin arkkitehti Liis Sagadi auttoi tilaajaa toteuttamaan visionsa monikäyttöisestä kakkoskodista.

Tavoitteena oli luoda viihtyisä ja toimiva tilaratkaisu, jossa voi rentoutua ja vastaanottaa vieraita.

Lopputuloksena syntyi ylellinen yksikerroksinen CLT-elementtitalo, jossa tilavat ja hyvin harkitut huoneet on jaettu kahteen harmonisesti toisiinsa liittyvään rakennuksen osaan.

Monikäyttöinen koti suurelle perheelle

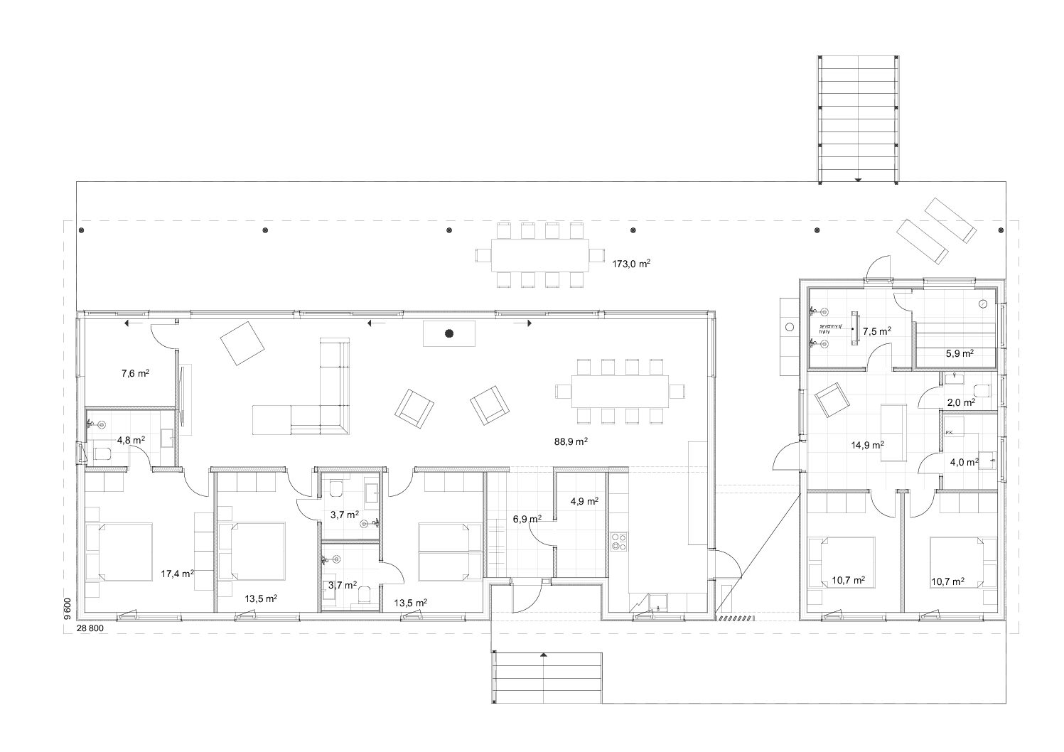
Asiakas lähestyi Finnlogia selkeän näkemyksen kanssa ja esitteli arkkitehdille perusteellisesti harkitun tilasuunnitelman ja arkkitehtonisen ratkaisun.

Perhe halusi ensisijaisesti toimivan, tilavan ja viihtyisän asuinympäristön, joka sopisi niin arkeen kuin vieraiden vastaanottamiseen.

Talossa oli oltava myös sukulaisille tarpeeksi tilaa majoittua ja yksityisyyttä ja mukavuutta kaikille.

Joustava tilasuunnitelma

Arkkitehdin suurin haaste oli sovittaa asiakkaan näkemys tontin ominaisuuksiin ja tilarajoitteisiin. Vaikka kompromisseja jouduttiin tekemään, kaikki asiakkaalle tärkeät toiveet pystyttiin säilyttämään.

Talo suunniteltiin riittävän suureksi perheelle ja heidän vierailleen. Koska perhe ei asu maalla ympärivuotisesti, tilasuunnitelman oli oltava joustava, jotta se voisi toimia tarvittaessa lyhytaikaisena asuntona.

Mukavuussyistä jokaiseen makuuhuoneeseen lisättiin oma kylpyhuone.

Koti, joka sulautuu ympäristöönsä

Avarat asuintilat, suuret ikkunat ja tarkasti sijoitetut terassit varmistivat kauniit näkymät sekä sisältä että ulkoa.

Ikkunat luovat sujuvan siirtymän sisä- ja ulkotilojen välillä, jolloin kotia ympäröivä luonto näyttäisi tulevan osaksi kodin jokapäiväistä elinympäristöä.

Rakennuksen toinen osa on suunniteltu erilliseksi saunarakennukseksi, jossa saunatilojen lisäksi ovat myös olohuone ja kaksi makuuhuonetta. Perhe voi muuttaa huoneiden käyttötarkoitusta myöhemmin tarpeidensa mukaan.

Koti, jossa jokainen hetki on arvokas!

Finnlog-talo ei ole vain rakennus - se on lämmin ja viihtyisä koti, jossa voit elää arkea kuin juhlaa.