HIRSITALOT

Villa Modi

Kompakti kaupunkikoti neljän - viiden henkilön perheelle. Katemateriaalin jatkuminen julkisivussa ja kattoikkunat tuovat persoonallista ilmettä tähän taloon.

Katso lisää

Villa Ülgen

Ülgen on harkittu kokonaisuus, joka koostuu päärakennuksesta ja erillisestä saunarakennuksesta. Sisä- ja ulkotilat yhdistyvät siinä lähes katkeamattomaksi jatkumoksi erilaisten terassien sekä näyttävän lasiseinän ansiosta.

Katso lisää

Villa Selene

Talomalli Selenen muotokieli tuo klassiseen talomalliin nykyaikaista tyyliä, joka istuu ympäristöönsä niin kaupungissa kuin maaseudulla. Perinteisestä viistokattoisesta rakennustyylistä johdettu muoto ilman räystäitä ja korostetut päätyseinät luovat jännittävän vaihtoehdon klassisille ratkaisuille.

Katso lisää

Villa Danae

Talomalli Danae - raikas ja moderni pohjoismainen klassikko. Danaen arkkitehtuuri yhdistää klassisen talon muodon ja skandinaavisen muotoilun.

Katso lisää

Villa Elusu

Elusu on kolmesta kytketystä suorakulmaisesta hirsikehästä koostuva talomalli. Avoin oleskelutila keskimmäisessä hirsikehistä työntyy erkkerimäisesti pihan puolelle ja toiselle puolelle taloa rakennuskappaleiden väliin muodostuu sisäänkäyntipiha. Rakennuskokonaisuuden sisänurkkiin voidaan luontevasti toteuttaa katoksia ja terasseja.

Katso lisää

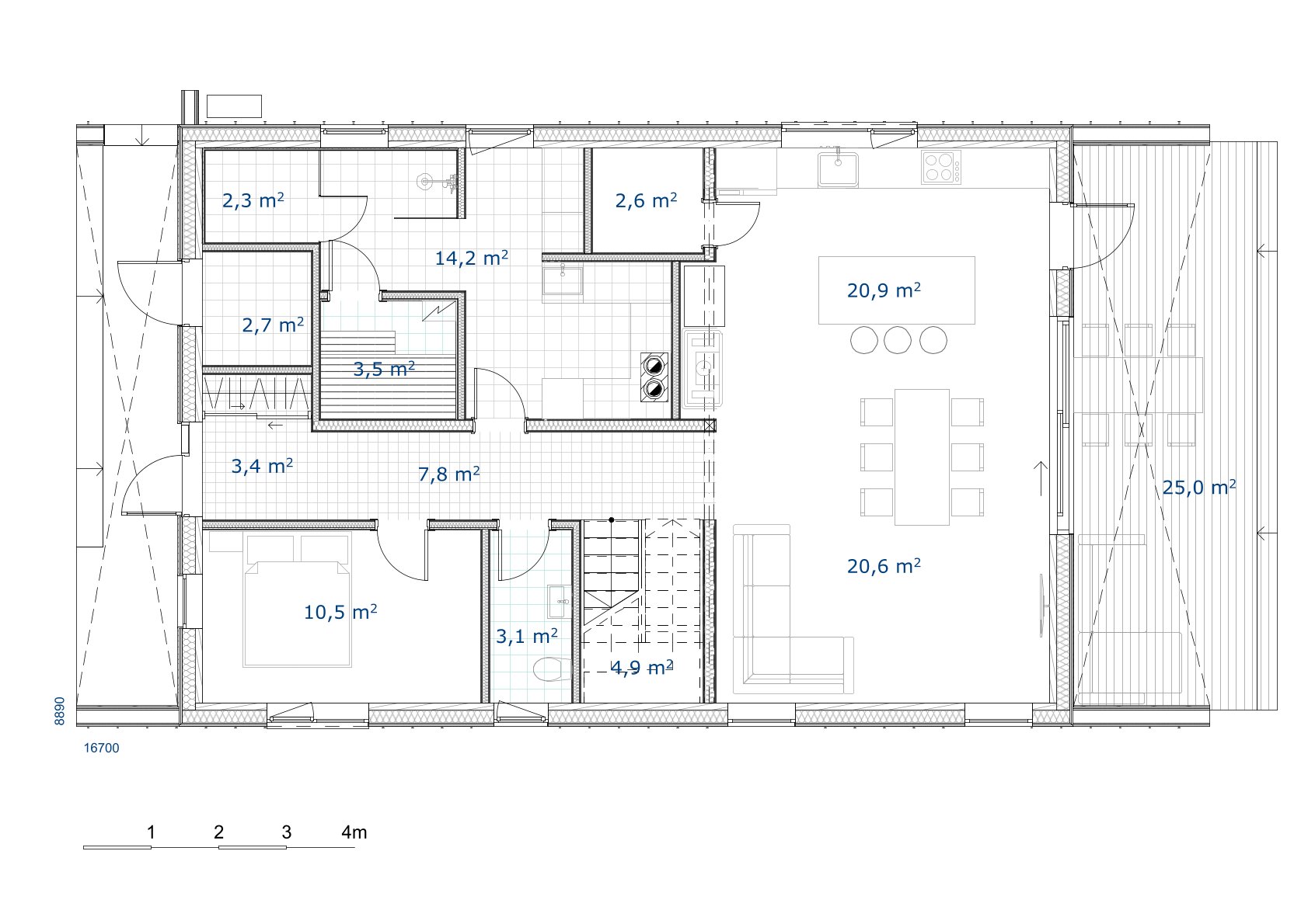
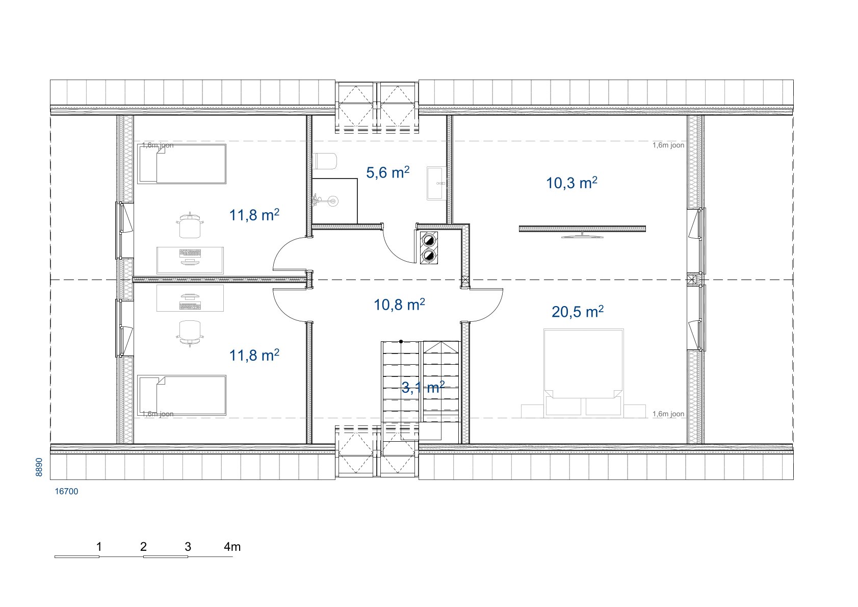
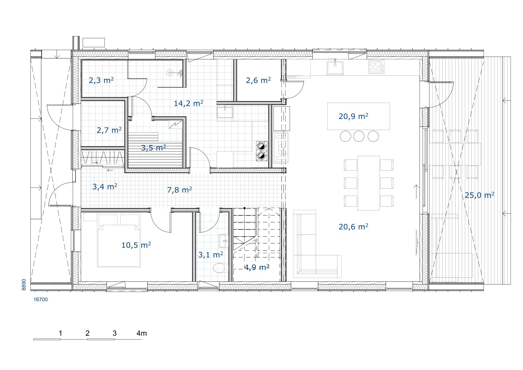
Villa Sirene

Sirene on ylellinen hirsitalo, johon tulvii runsaasti luonnonvaloa talon keskellä olevista kattoikkunoista. Suuri ja valoisa oleskelualue kutsuu koko perheen viihtymään yhdessä.

Katso lisää

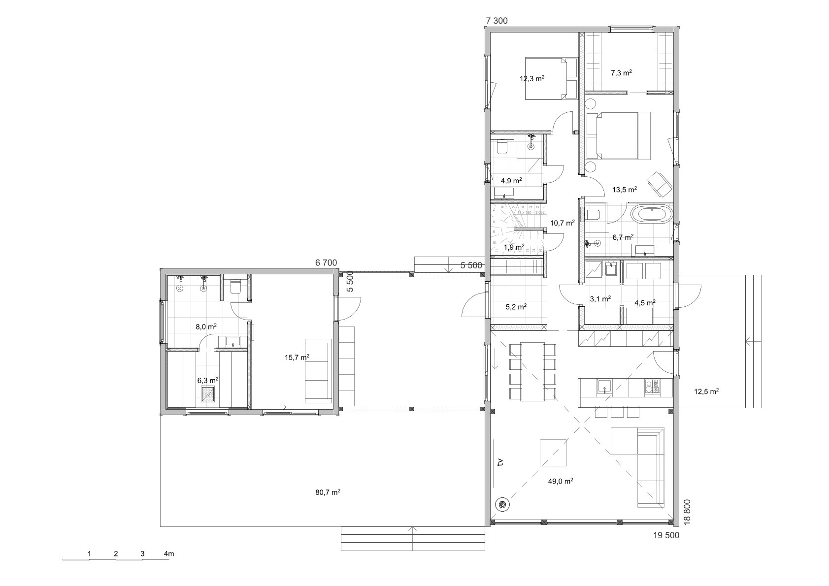
Villa Rasa

Atriumtalon suojaisa sisäpiha antaa yksityisyyttä ja suojaa rakennetussa kaupunkiympäristössä.

Katso lisää

Villa Devana

Hirsitalo Devanassa on perinteinen harjakatto ja sen muotokieli on yksinkertainen ja maanläheinen. Suorakaiteenmuotoinen pohjaratkaisu on selkeä ja käytännöllinen.

Katso lisää

Villa Nero

Lähes 400 m2 omakotitalo on jaettu erillisiin yksiköihin niiden toimintojen perusteella: sisäänkäynti, asuintilat, makuutilat, kuntosalitila ja spa-osasto. Näitä osia voidaan käyttää ja sijoitella monella eri tavalla asiakkaan toivomusten mukaan.

Katso lisää

Villa Puinen lintu

Puinen lintu sopii monenlaisiin ympäristöihin - sekä maaseudulle että kaupunkiin, koska se yhdistää perinteet modernin arkkitehtuurikielen kanssa.

Katso lisää

Villa Pitkä-lyhyt-pitkä

Tämä koti on lämmin ja turvallinen paikka, jossa puumateriaalin runsas käyttö luo rauhallisen tunnelman. Taloa halkoo käytävä, jossa aurinkoisella puolella sijaitsevat asuintilat ja varjoisella puolella tekniset tilat ja kodinhoitohuone. Erillisiä huoneita voidaan lisätä tai lattiatilaa kasvattaa asiakkaan tarpeiden mukaan.

Katso lisää

Villa Karhupää

Rakennuksen muoto mahdollistaa kauniit näkymät kaikkialta päärakennuksesta. Olohuoneesta, ruokailutilasta ja saunasta pääsee tilavalle terassille.

Katso lisää

Villa Janus

Talomalli Janus yhdistää kahden erilaisen rakennuksen visuaaliset ominaisuudet: minimalistisen talon ulkokuori on päällystetty kevyellä vanerilla, mutta taustalevyt ovat valmistettu Finnlogin lamellihirsistä. Tämä ratkaisu tarjoaa mahdollisuuden sijoittaa rakennus kaupunkiympäristöön, jossa perinteisiä hirsitaloja ei voida välttämättä rakentaa paikallisten rakennusmääräysten vuoksi.

Katso lisää

Villa Ajari

Ajari on nykyaikainen, yksikerroksinen hirsistä rakennettu talomalli, jonka julkisivua elävöittävät isot lasipinnat. Asunto on osoitus siitä, että hirsitalon voi rakentaa myös modernilla tyylillä.

Katso lisää

Villa Elegua

Villa Eleguan suunnittelussa luotiin kompaktiin pientaloon mahdollisimman tilava ja valoisa oleskelualue, joka saa rakennuksen tuntumaan kokoaan suuremmalta. Avoin, yhtenäinen oleskelutila avautuu koko rakennuksen pituudelta pihan suuntaan.

Katso lisää

Villa Belenus

Belenus on moderni sekä optimaalinen talomalli. Ulkomittojensa ja näyttävän lasijulkisivunsa ansiosta sopii Belenus hyvin sekä kaupunkiympäristöön että maaseudun kauniiseen luontoon.

Katso lisää