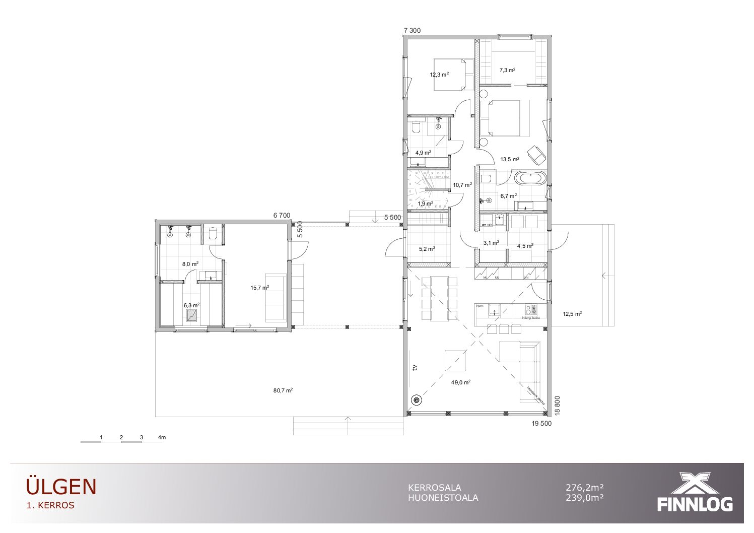
Ülgen on harkittu kokonaisuus, joka koostuu päärakennuksesta ja erillisestä saunarakennuksesta. Sisä- ja ulkotilat yhdistyvät siinä lähes katkeamattomaksi jatkumoksi erilaisten terassien sekä näyttävän lasiseinän ansiosta.
Ülgenin päärakennuksessa on avara olohuone ja avoin keittiö. Tämän tilan kruunaa kahden kerroksen korkuinen lasiseinä. Ensimmäiseen kerrokseen on suunniteltu kaikki tarvittavat toiminnot – olohuoneen lisäksi siellä ovat kaksi makuuhuonetta, kylpy- ja vaatehuoneet, tekninen tila sekä kodinhoitohuone.
Toisessa kerroksessa sijaitsee puoliavoin ullakkotila, jota voi käyttää esimerkiksi kotitoimistona tai vierashuoneena.
Erillinen rakennus on viihtyisä tila, jossa ovat pukuhuone, pesuhuone ja sauna. Säilytysparvi tuo lisää tilaa saunarakennuksessa säilytettäville tavaroille.
Rakennuksen kaksi osaa yhdistää tilava katettu alue, joka suojaa sateelta ja tuulelta. Se pidentää terassin käyttöaikaa varhaisesta keväästä myöhäiseen syksyyn saakka.
Katetun terassin lisäksi kokonaisuuteen kuuluu myös avoin terassialue, jossa voi nauttia lämpimistä kesäilloista. Lisäksi keittiön viereen on suunniteltu pieni erillinen terassialue, jossa voi nautiskella esimerkiksi aamukahvista ulkoilmassa.
Talo voidaan rakentaa joko massiivihirrestä tai CLT-elementeistä. Jokaista taloa, talon pohjapiirros ja kerrosala mukaan lukien, voidaan muokata asiakkaan toiveiden ja tarpeiden mukaan.
Tervetuloa Finnlogin maksuttomaan konsultaatiotapaamiseen!





















