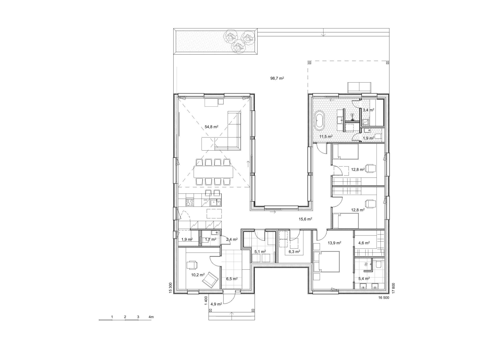
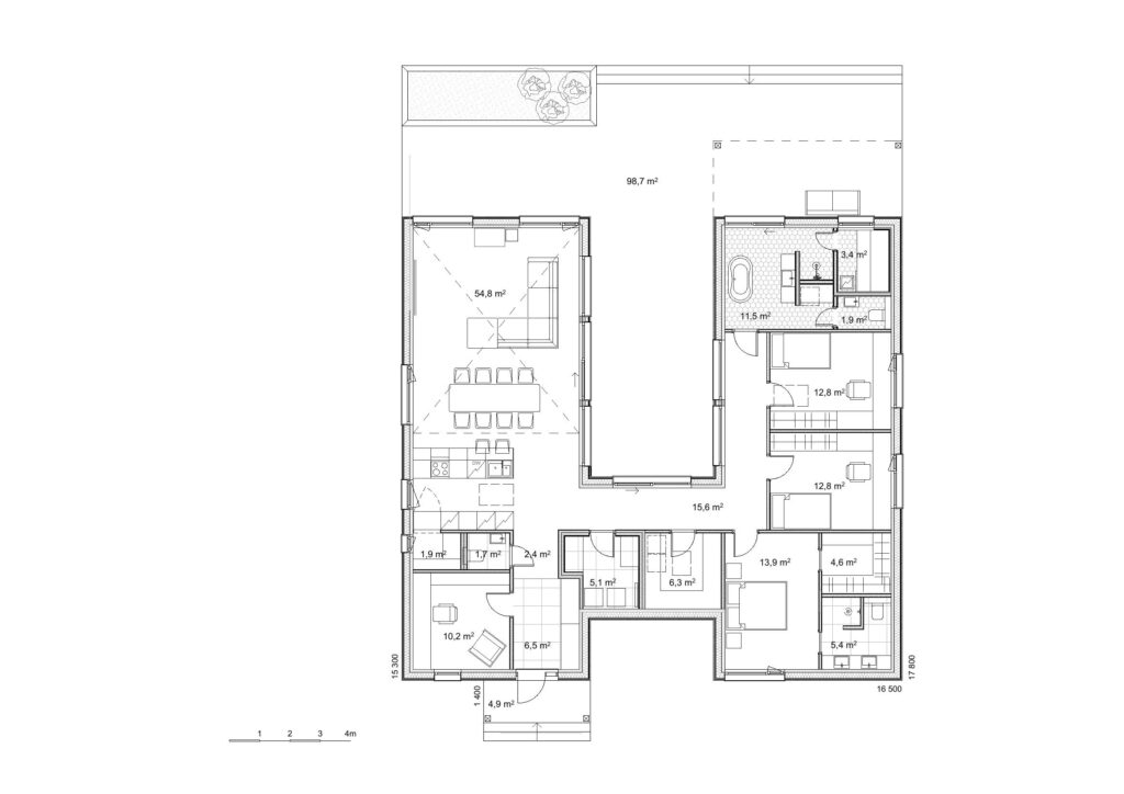
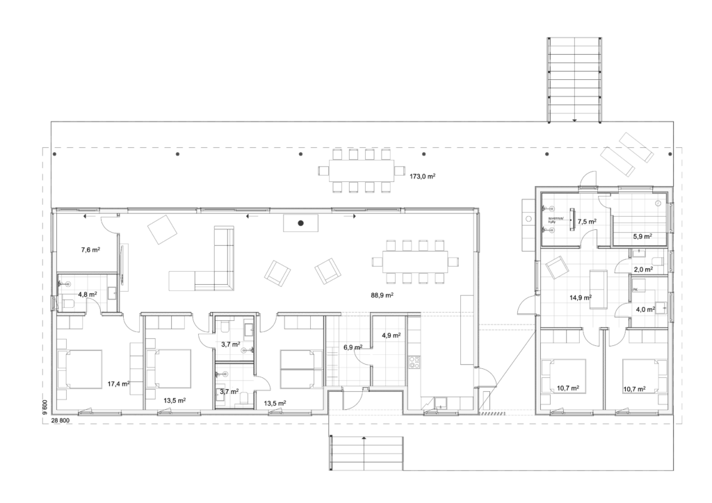
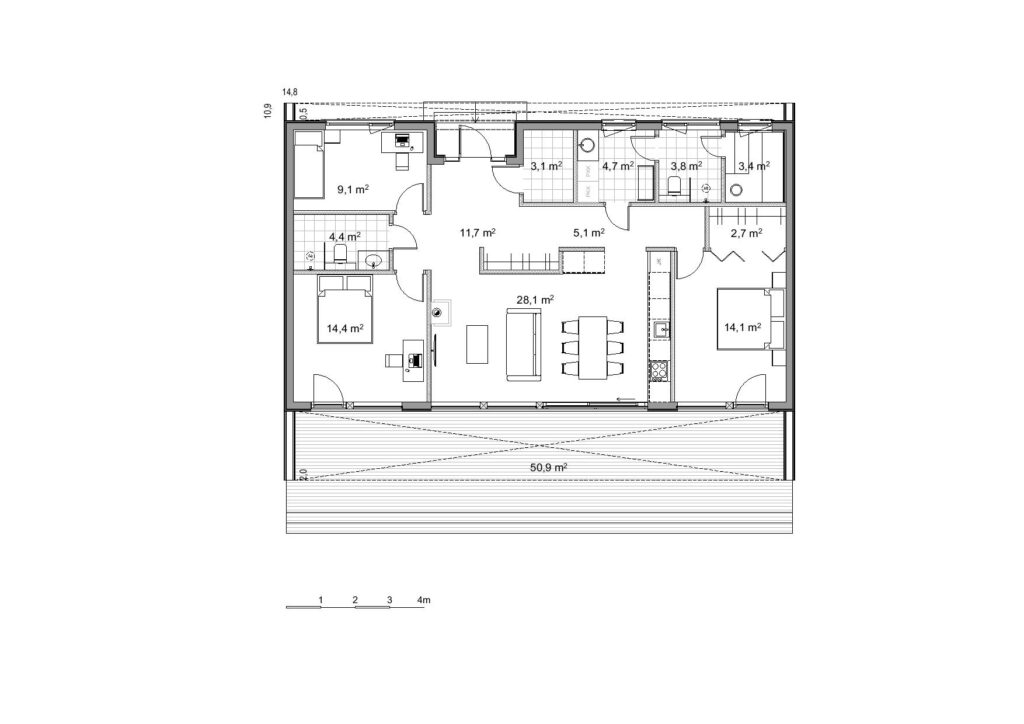
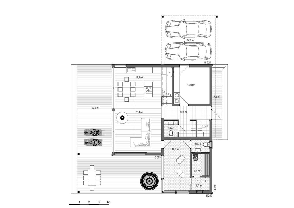
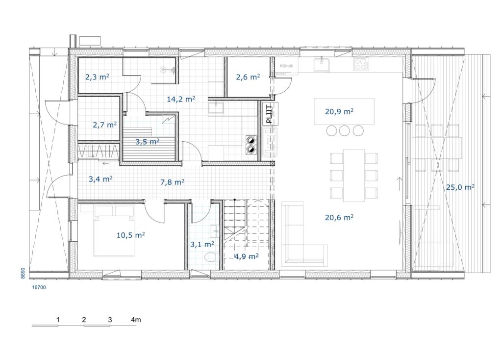
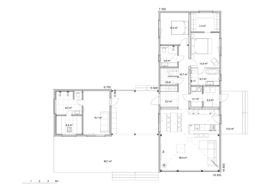
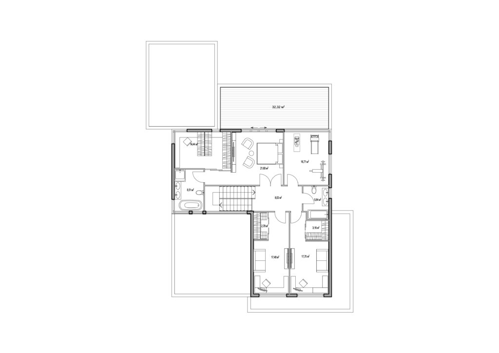
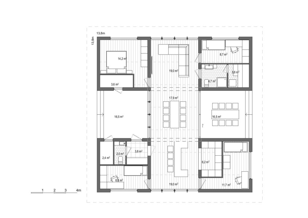
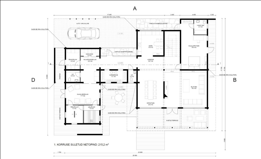
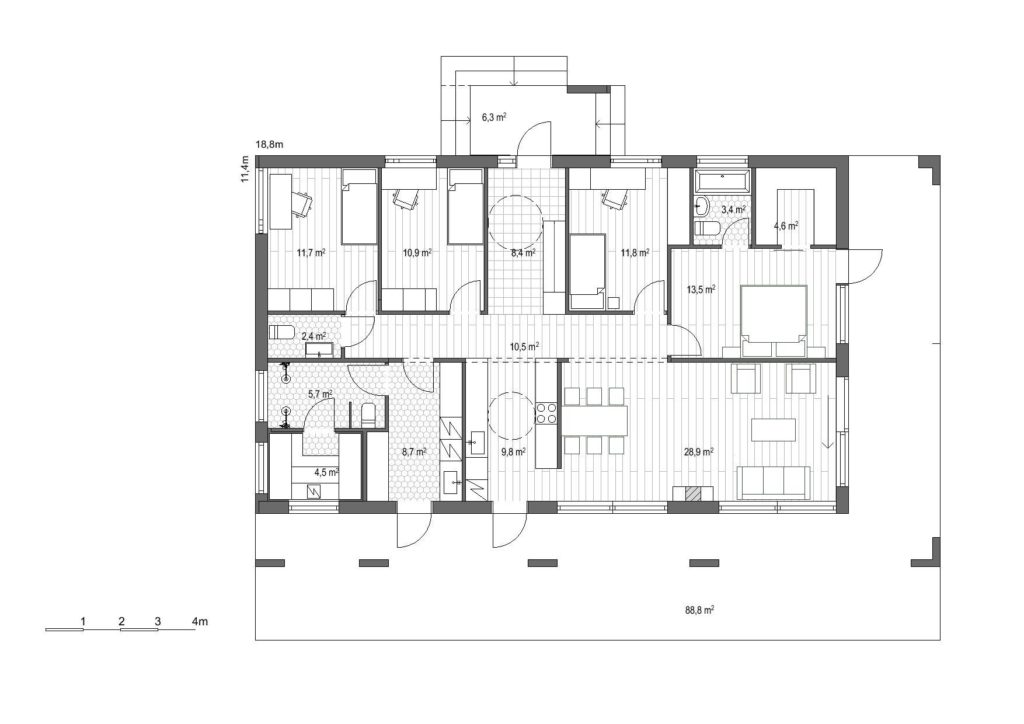
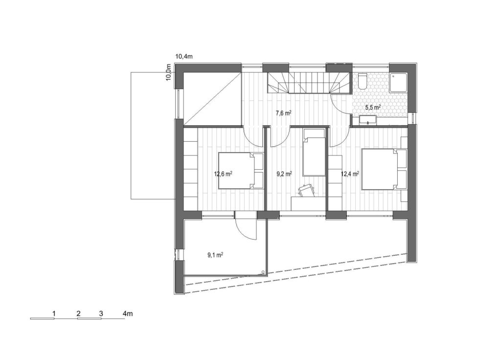
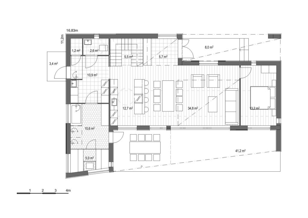
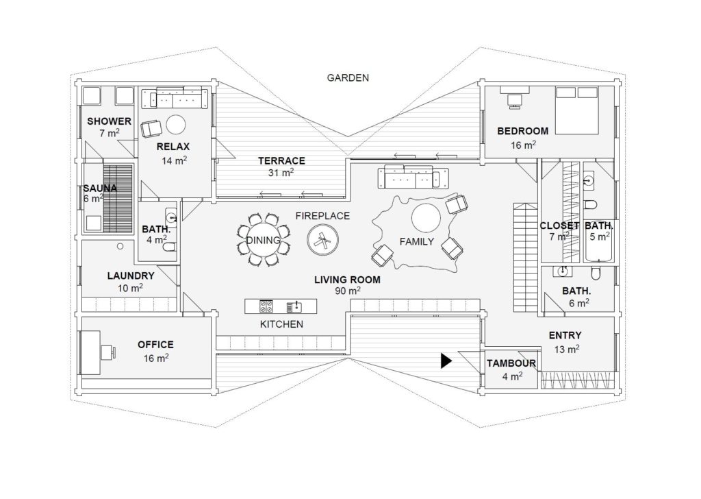
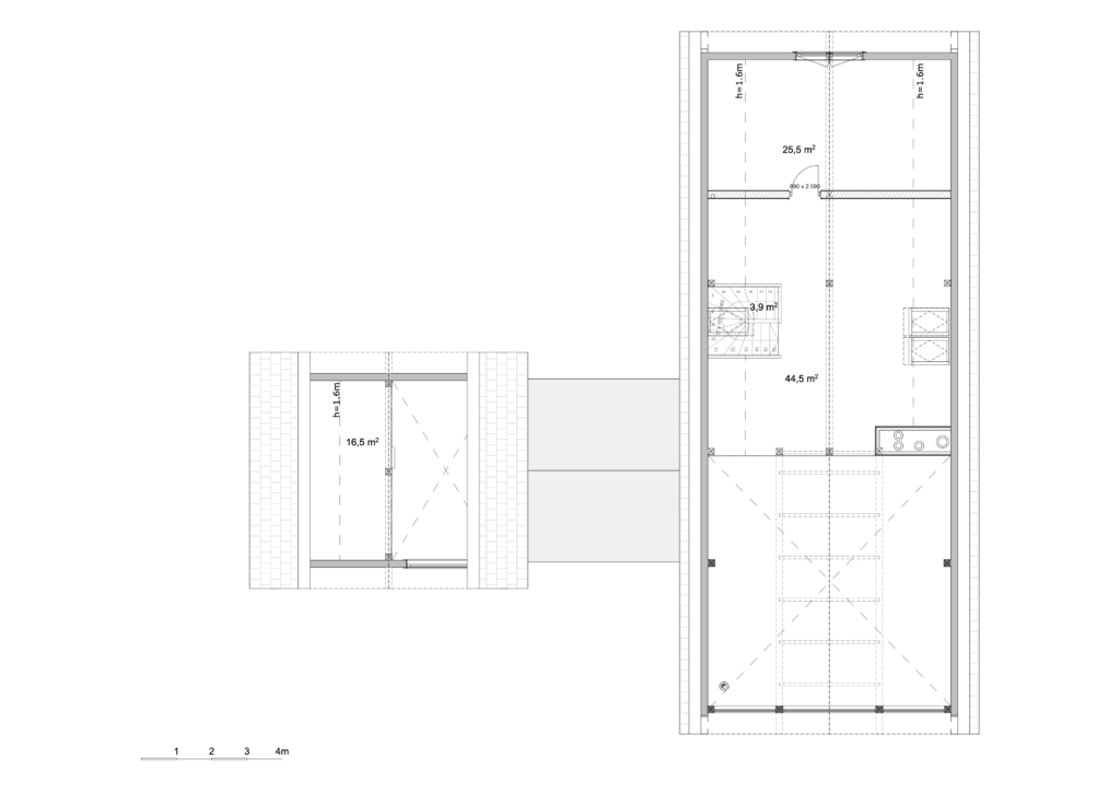
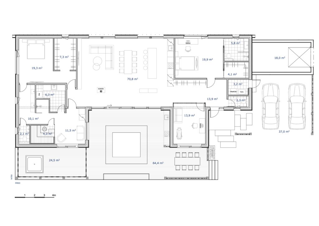
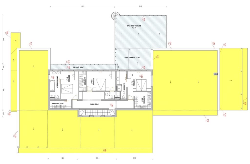
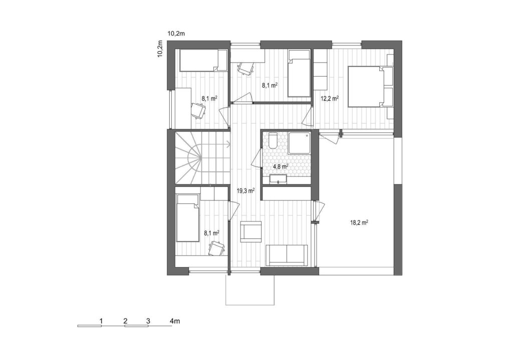
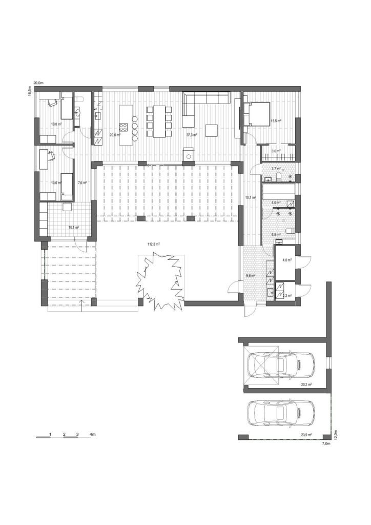
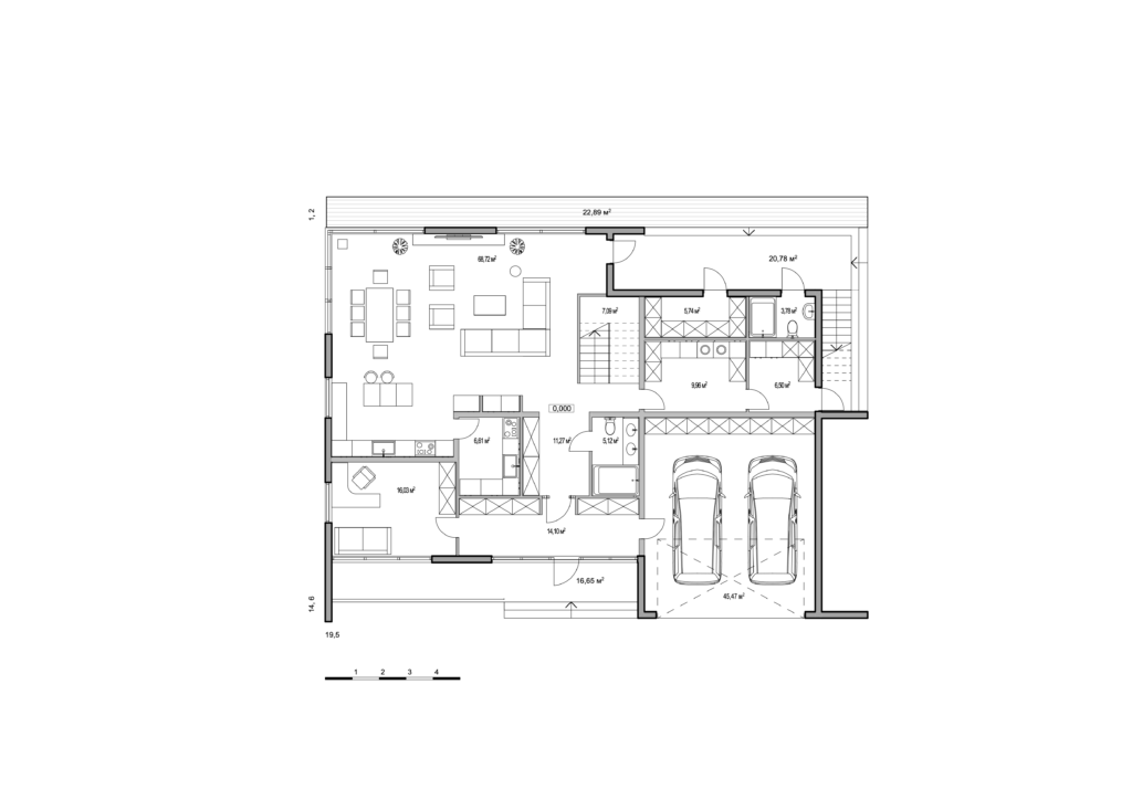
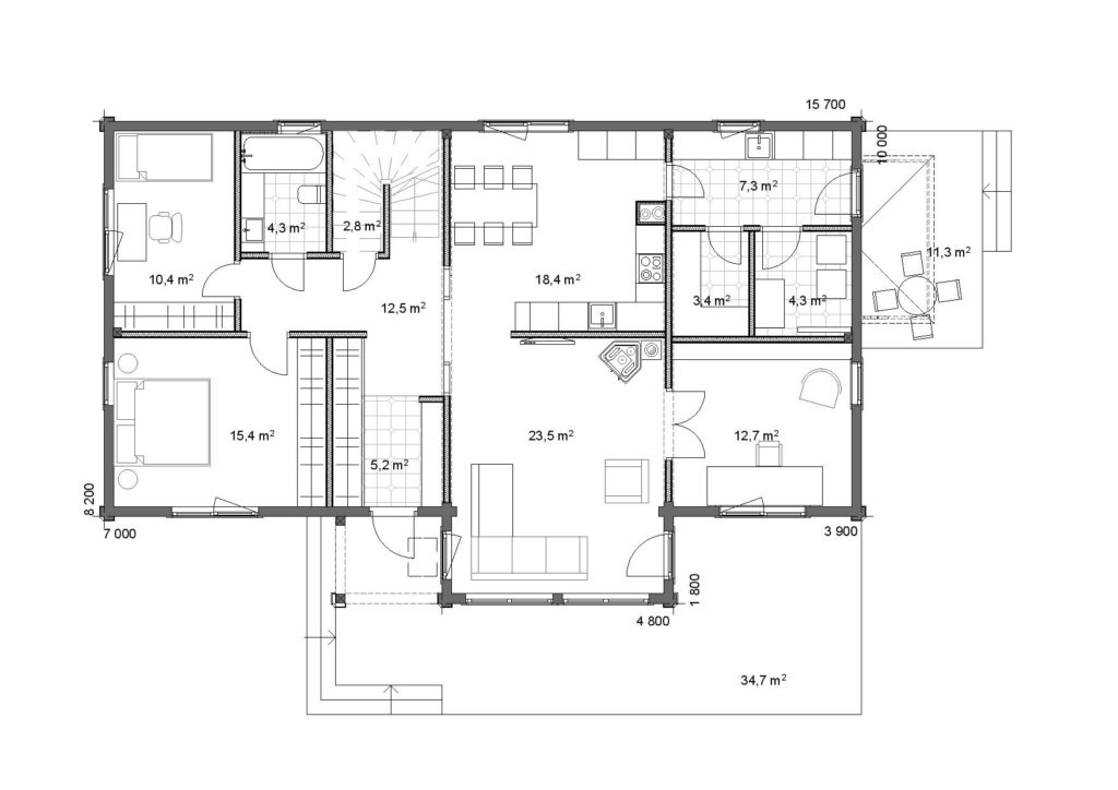
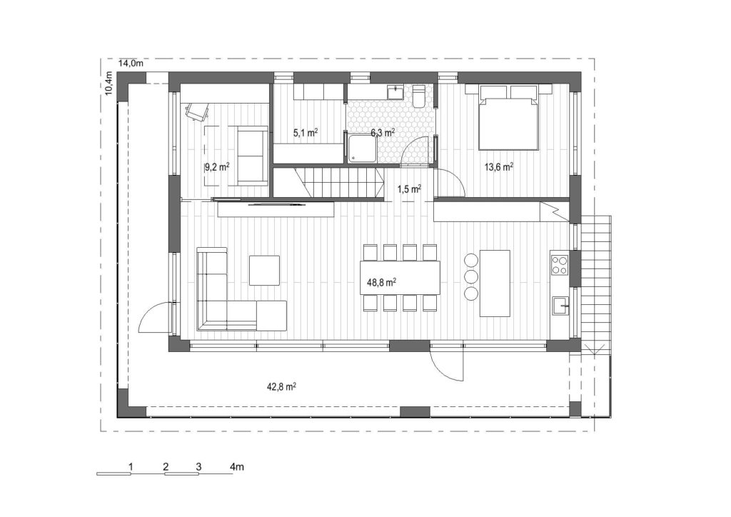
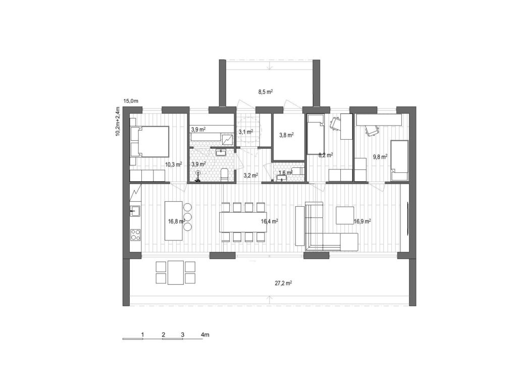
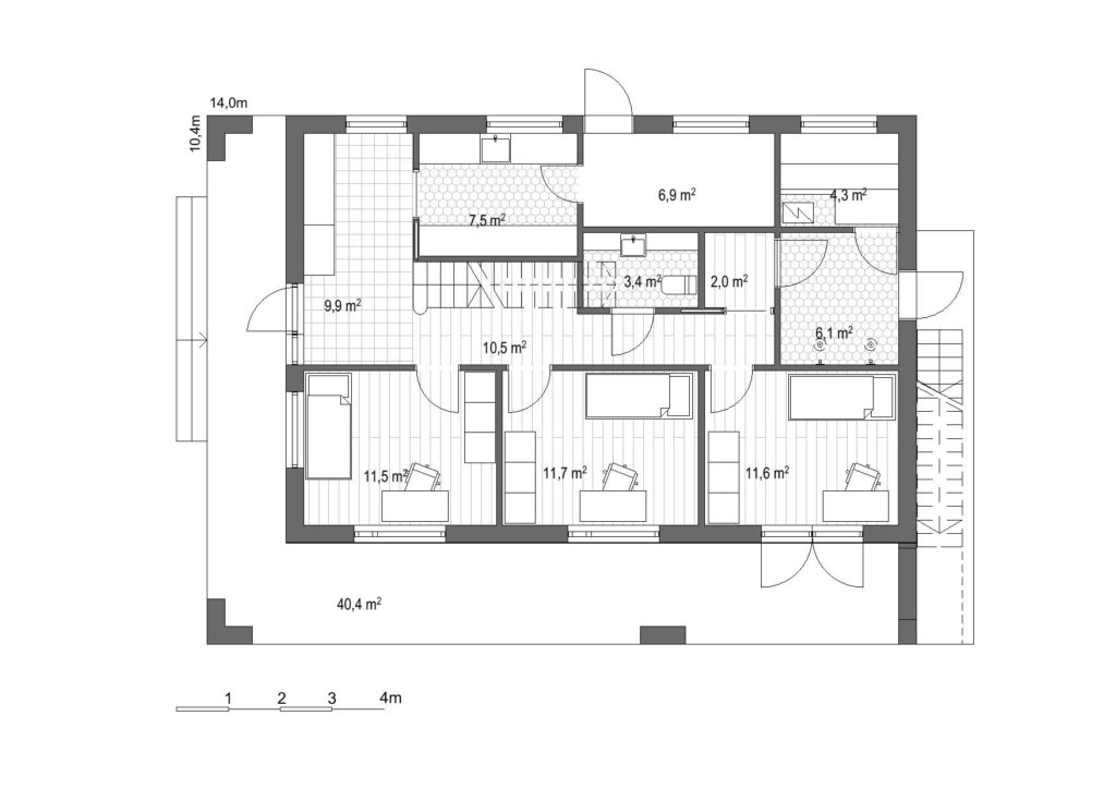
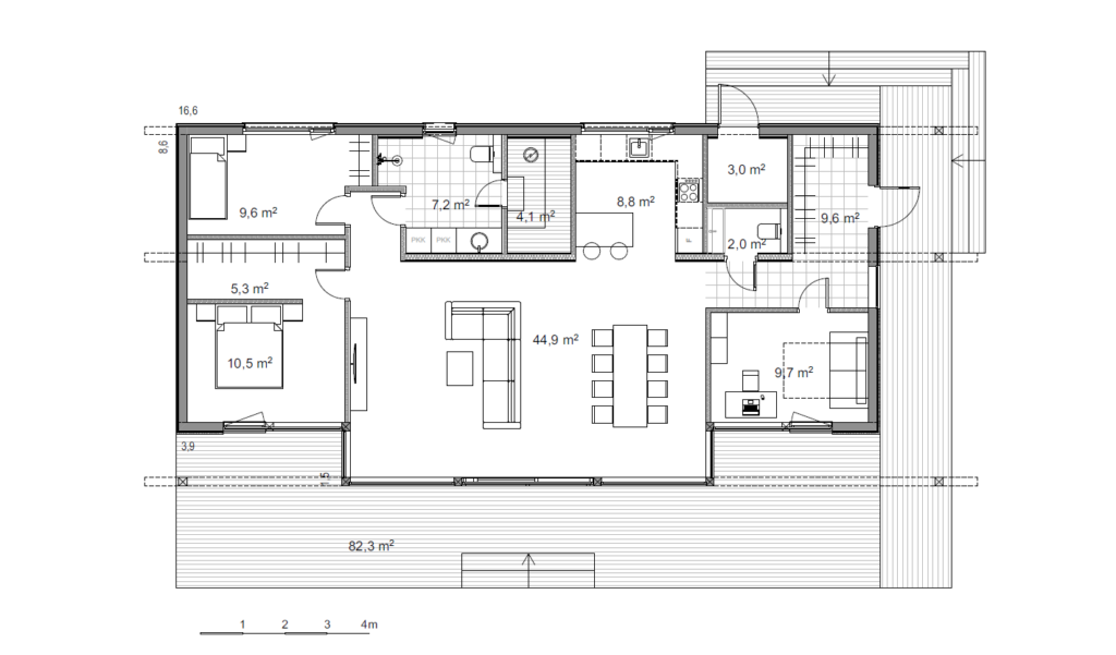
Villa Eirene on tehty talon tilanneen asiakkaan toiveiden mukaan. Rakennuksen pohjaratkaisu on jaettu kahteen vyöhykkeeseen – toisella puolella ovat erilliset makuuhuoneet ja toisella tilava olohuone ja keittiö. Rakennuksen perussuunnitelmaa voidaan muokata perheen toiveiden ja tarpeiden mukaan – esimerkiksi lisämakuuhuoneen tarpeessa voidaan rakennuksen toista siipeä pidentää.
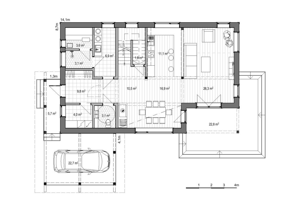
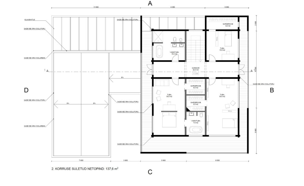
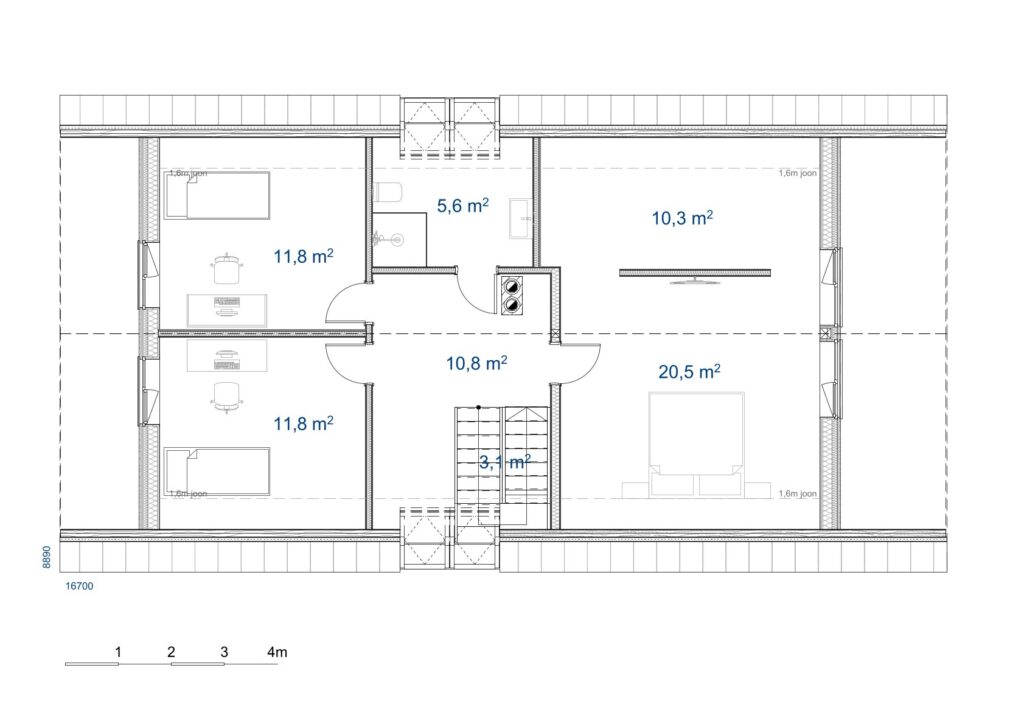
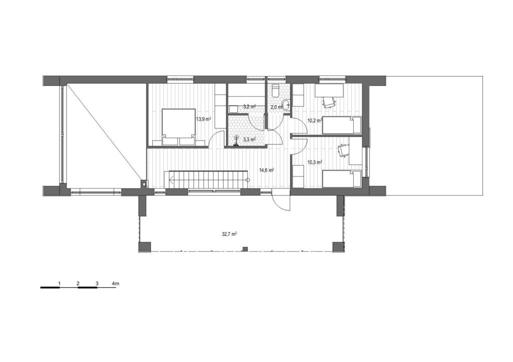
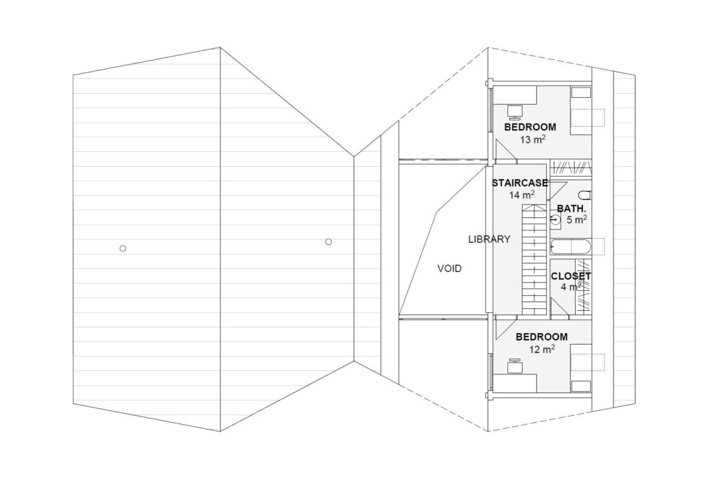
Taloa suunniteltaessa on asuin- ja makuutilojen lisäksi otettu huomioon myös säilytystilat, vaatekaapit ja muut säilytysratkaisut, jotta kaikelle löytyy paikkansa talossa. Kotitoimistoksi suunniteltiin huone, josta on näkymät talon etupuolelle.
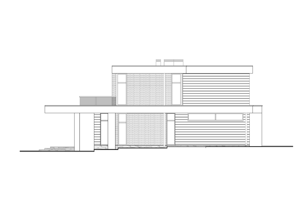
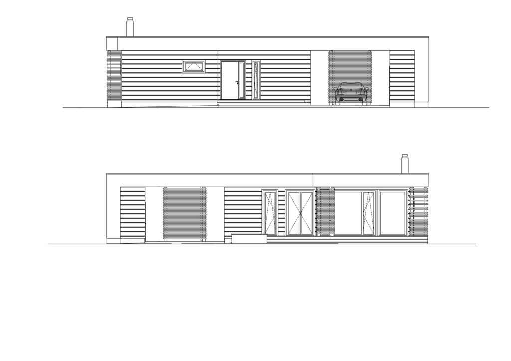
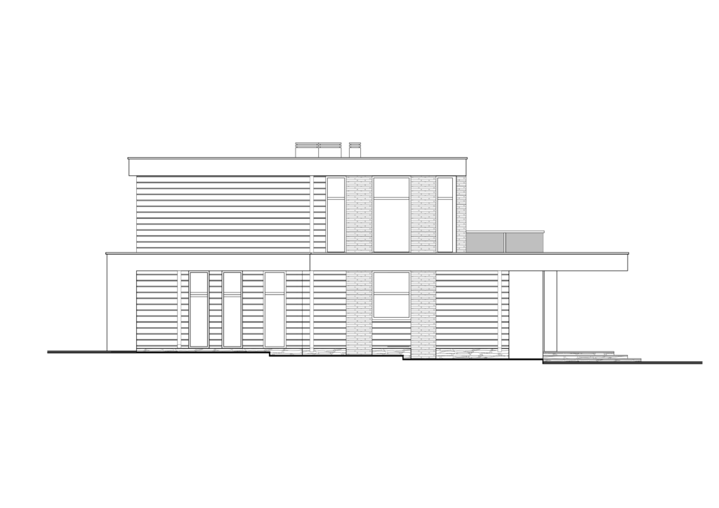
Julkisivua koristavat suuret lasipinnat, joiden sijainnit ja koot määräytyivät sisustussuunnitelman huonekalujen sijoittelun mukaan. Pihalle päin olevat suuret ikkunat ja liukuovet yhdistävät talon kaksi puolta ja luovat mukavan yksityisen terassialueen.
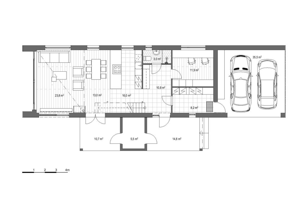
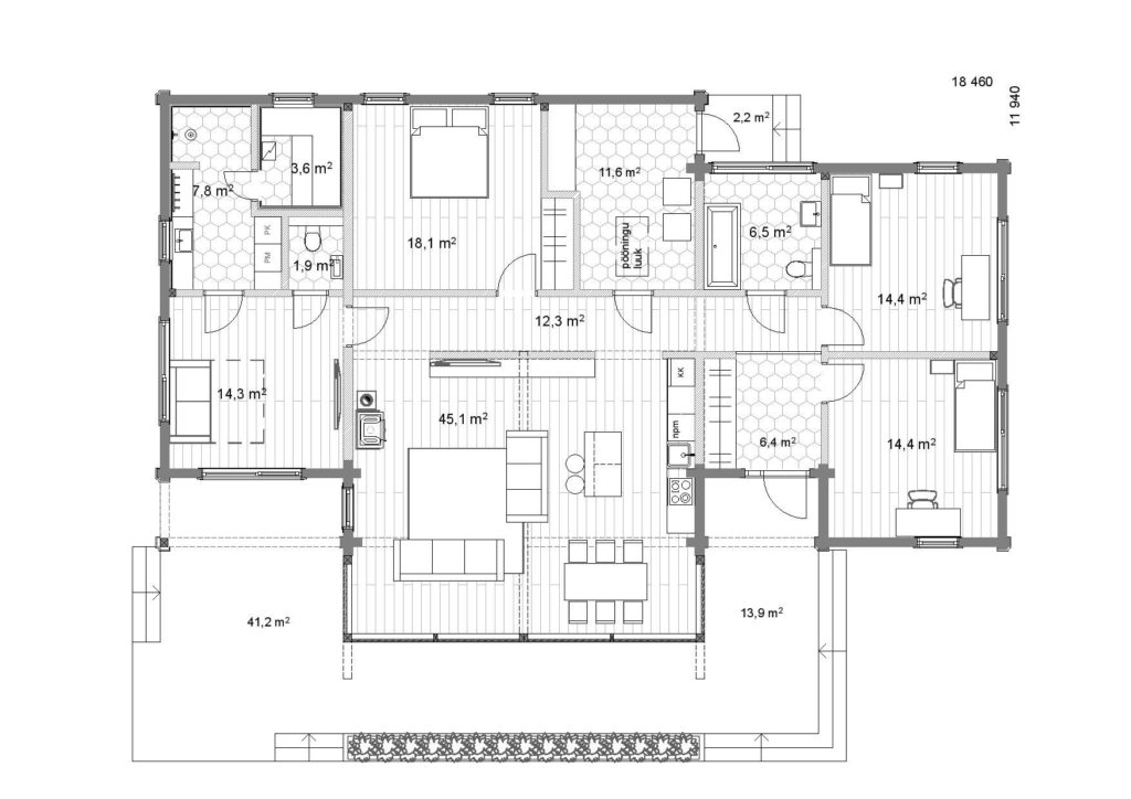
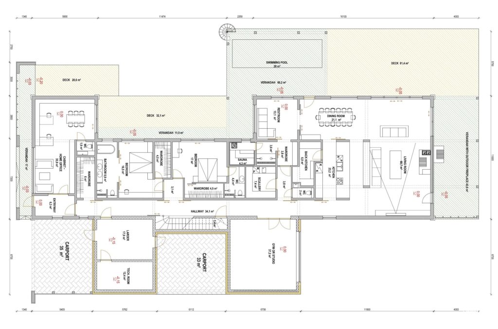
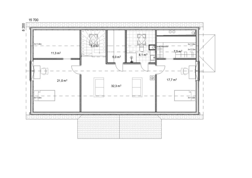
Talo on täysin muokattavissa asiakkaan toiveiden mukaan.
Talo voidaan rakentaa joko massiivihirrestä tai CLT-elementeistä. Jokaista taloa, talon pohjapiirros ja kerrosala mukaan lukien, voidaan muokata asiakkaan toiveiden ja tarpeiden mukaan.
Tervetuloa Finnlogin maksuttomaan konsultaatiotapaamiseen!

















