Villa Janus suunniteltiin sopimaan erilaisiin ympäristöihin. Siinä on kerroksellinen julkisivu, jonka ulkonäköä on helppo muuttaa erilaisilla materiaalivalinnoilla.
Talossa on kahden erilaisen rakennuksen visuaaliset ominaisuudet: minimalistisen talon ulkokuori on päällystetty kevyellä vanerilla, mutta taustalevyt on valmistettu Finnlogin lamellihirsista klassisella hirsirakennustekniikalla. Tämä ratkaisu tarjoaa mahdollisuuden sijoittaa rakennus kaupunkiympäristöön, jossa perinteisiä hirsitaloja ei voida välttämättä rakentaa paikallisten rakennusmääräysten vuoksi.
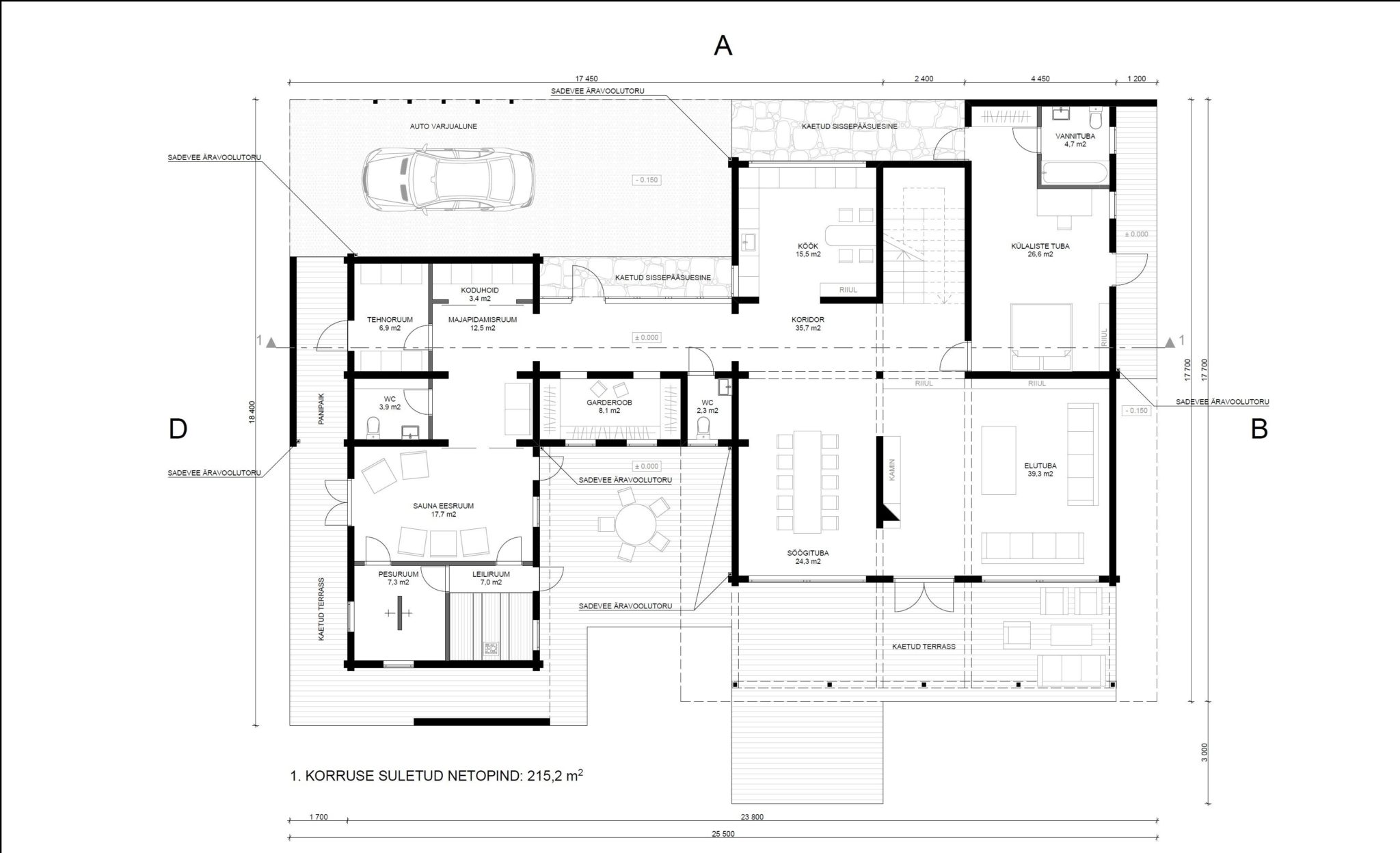
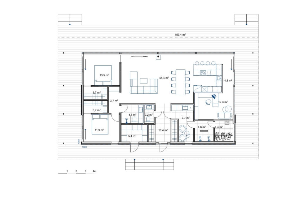
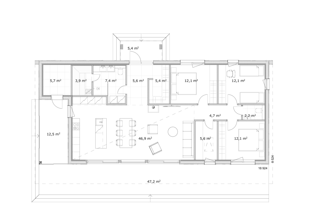
Rakennus on yhden perheen talo, joka koostuu kahdesta erillisestä osasta: yhden kerroksen saunaosastosta ja kaksikerroksisesta asuinosasta. Suunnittelua voidaan muokata: taloa voidaan kääntää ja muokata erilaisiin tontteihin sopivaksi menettämättä talon ideaa. Sisäänkäyntialue jakaa rakennuksen kahteen selvästi määriteltyyn osaan siten, että saunaa, asuintiloja ja vierashuoneita voidaan käyttää häiritsemättä muita toimintoja.
Pohja on tiivistetty vähentämään lasipintojen aiheuttamaa lämpöhäviötä. Pihan eteläinen julkisivu on avoimempi ympäristölle. Suuret lasipinnat, parvekkeet ja terassit mahdollistavat runsaan luonnonvalon pääsyn sisälle ja näkymät eri suuntiin.
Talon ovat suunnitelleet arkkitehdit Martin Kinks, Erkki Annama ja Risto Parve.
Taloa voidaan muokata asiakkaan toiveiden mukaan.
Lue avaimet käteen -palvelustamme!
Talo voidaan rakentaa joko massiivihirrestä tai CLT-elementeistä. Jokaista taloa, talon pohjapiirros ja kerrosala mukaan lukien, voidaan muokata asiakkaan toiveiden ja tarpeiden mukaan.
Tervetuloa Finnlogin maksuttomaan konsultaatiotapaamiseen!












