Skanda – talo, jossa vietät laatuaikaa koko perheen kesken.
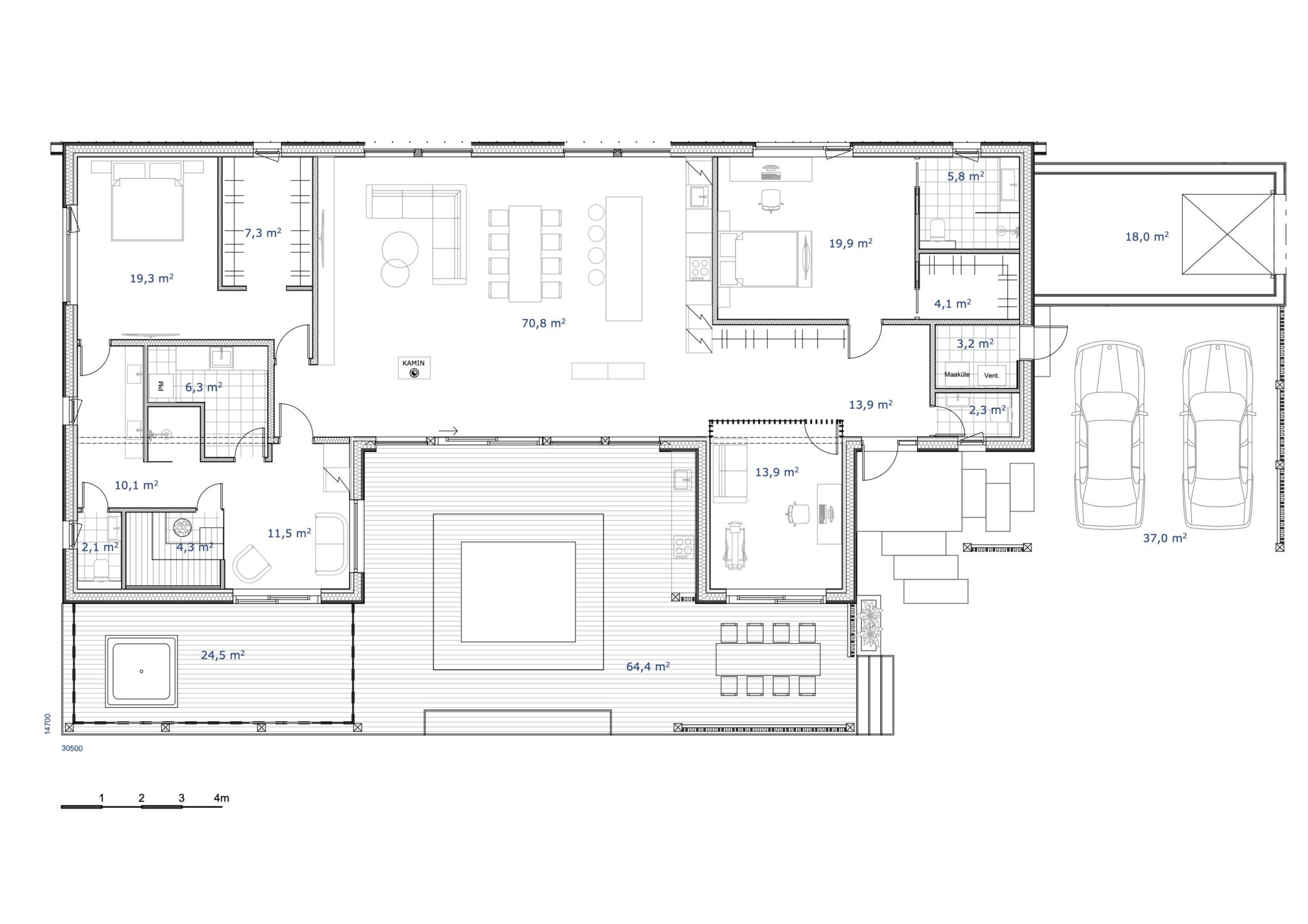
Skandan korkea huonekorkeus luo ilmavan ja tilavan tunnelman taloon. Suunnittelussa on kiinnitetty huomiota erityisesti siihen, että talossa voi rentoutua ruhtinaallisen hyvin. Myös asukkaiden yksityisyys on huomioitu.
Talossa on kaksi katettua aluetta, joista toinen on suunniteltu ruokailutilaksi ja toinen lasiseinien suojaamaksi tilaksi porealtaalle. Suuri terassi, jossa on oleskelualue ja ulkoilmakeittiö, yhdistää alueet toisiinsa.
Suunnitelmaa voidaan muokata asiakkaan toiveiden ja tarpeiden mukaan.
Talo voidaan rakentaa joko massiivihirrestä tai CLT-elementeistä. Jokaista taloa, talon pohjapiirros ja kerrosala mukaan lukien, voidaan muokata asiakkaan toiveiden ja tarpeiden mukaan.
Tervetuloa Finnlogin maksuttomaan konsultaatiotapaamiseen!

















