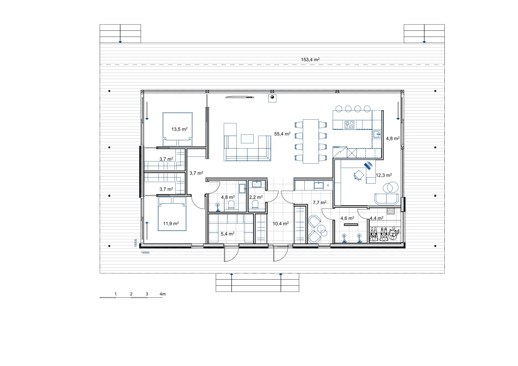
Tämä moderni omakotitalo sulautuu harmonisesti ympäröivään luontoon tarjoten yksityisyyttä ja lumoavia näkymiä. Rakennuksen minimalistinen arkkitehtuuri, suuret lattiasta kattoon ulottuvat ikkunat ja tilavat katetut terassit luovat saumattoman yhteyden sisä- ja ulkotilojen välille. Luonnonmateriaalit ja julkisivuviimeistely antavat talolle ajattoman ja elegantin ilmeen. Avara pohjaratkaisu takaa valoisat asuintilat ja upeat näkymät ympäröivään luontoon. Laadukkaat ratkaisut ja harkitut yksityiskohdat tarjoavat mukavuutta vaativimmallekin asunnonomistajalle.
Tämä koti on ihanteellinen valinta modernia muotoilua ja luonnonläheisyyttä arvostaville.

















