Koti, jossa tunnet olevasi luonnon syleilyssä.
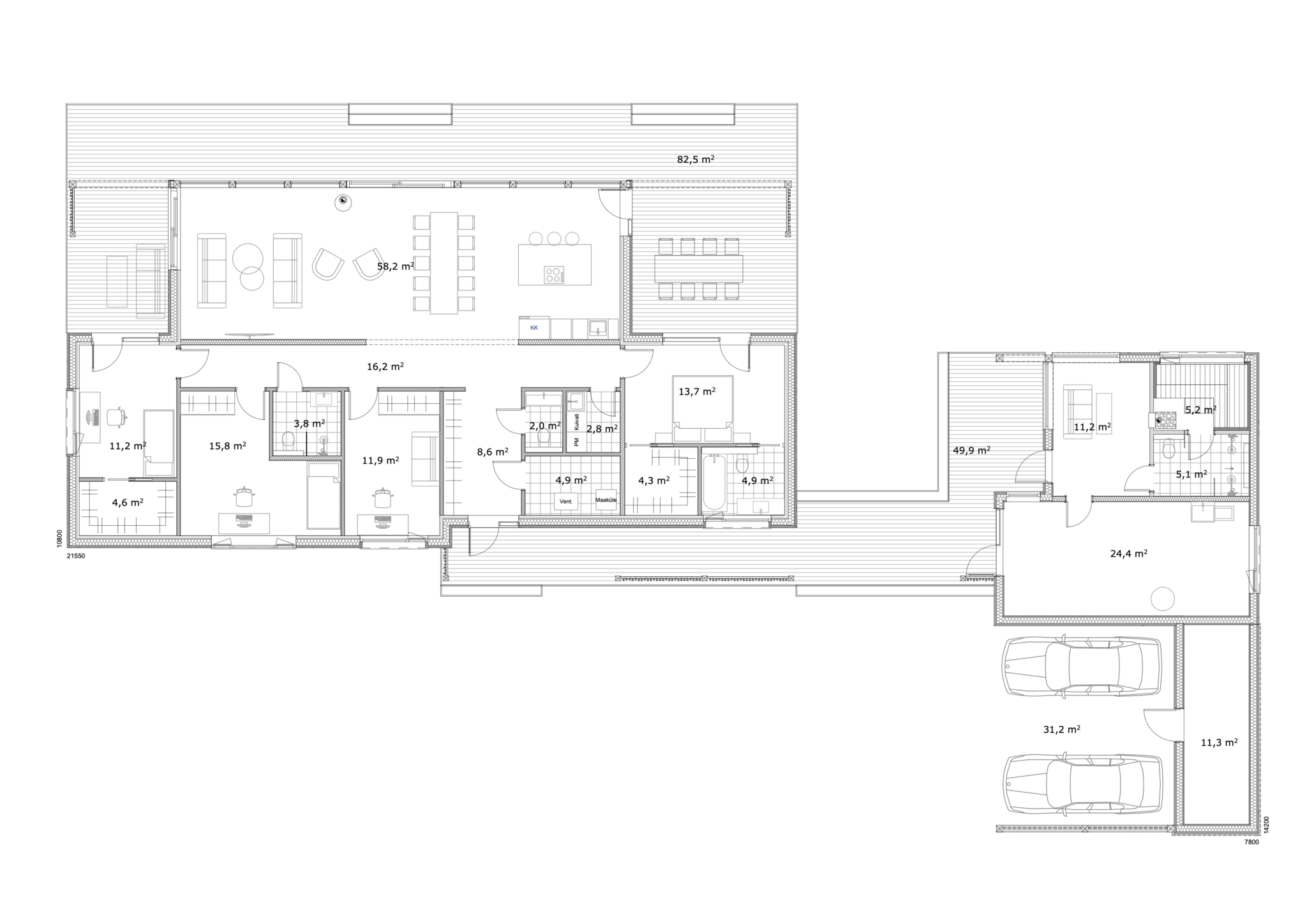
Tästä talosta avautuvat upeat näkymät ympäröivään luontoon. Rakennuksen pääsisäänkäynnin puoleinen alue on pelkistetty ja suojaisa, sisäpihan puolelta taas avautuvat panoraamanäkymät ympäristöön.
Tällainen ratkaisu mahdollistaa, että olohuone sulautuu terassiin ja ympäröivään luontoon lähes saumattomasti. Olohuone-keittiön molempia puolia reunustaa katettu terassi, minkä avulla ulkoiluaikaa voi pidentää alkukeväästä aina myöhäiseen syksyyn saakka.
Rakennuksen ominaispiirteisiin kuuluu eri suuntiin kallistuva katto, minkä ansiosta olohuoneen huonekorkeus on normaalia korkeampi. Korkeus luo tunteen avaruudesta ja antaa tilaa vain olla ja rentoutua.
Kokonaisuuteen kuuluu lisäksi apurakennus, jossa sijaitsevat sauna, harrastushuone ja autokatos. Tämä antaa omaa rauhaa päärakennukseen, jos perheessä harrastetaan esimerkiksi nikkarointia tai musiikin soittoa. Harrastushuone voidaan muuttaa vierashuoneeksi erillisen sisäänkäynnin avulla.
Suunnitelmaa voidaan muokata asiakkaan toiveiden ja tarpeiden mukaan.
Talo voidaan rakentaa joko massiivihirrestä tai CLT-elementeistä. Jokaista taloa, talon pohjapiirros ja kerrosala mukaan lukien, voidaan muokata asiakkaan toiveiden ja tarpeiden mukaan.
Tervetuloa Finnlogin maksuttomaan konsultaatiotapaamiseen!

















