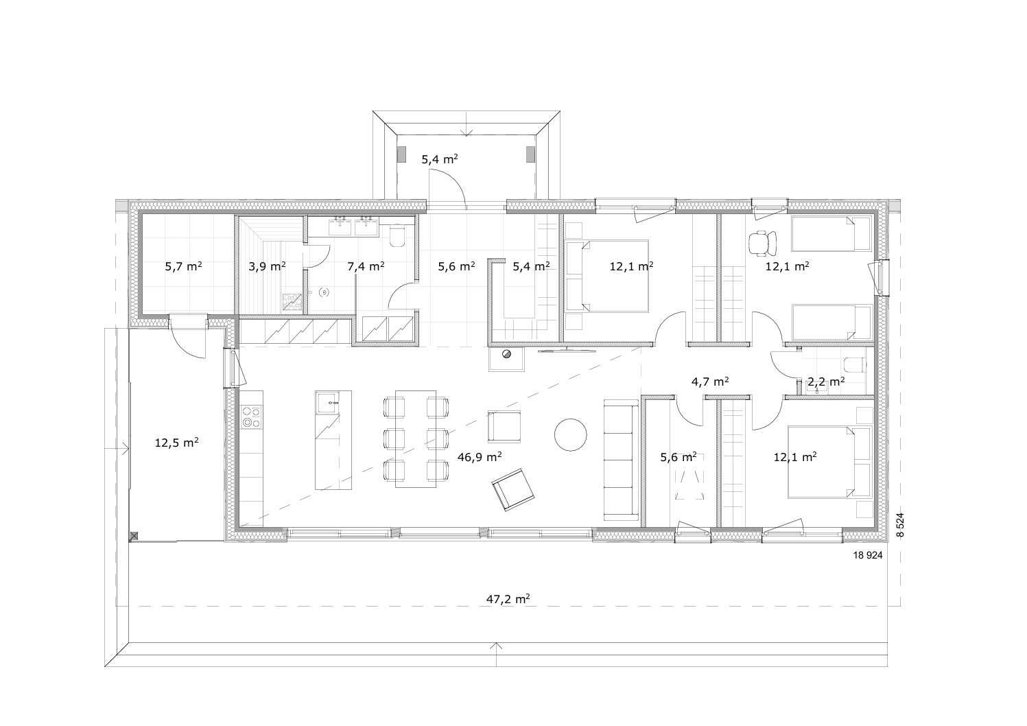
SAGAn kompaktin ulkomuodon kätköissä on avara keittiö–olohuone sekä kolme makuuhuonetta.
Taloon on suunniteltu käytännölliset säilytystilat: tilava vaatehuone ulko-oven vieressä sekä erillinen varasto makuuhuoneiden yhteydessä varmistavat, että kaikelle on oma paikkansa ja arki on sujuvaa. Varastotilan voi halutessaan muuttaa myös kodinhoitohuoneeksi tai pieneksi kotitoimistoksi. Talossa on lisäksi sauna sekä mukavankokoiset pesu- ja wc-tilat.
Sisäpihan puolella sijaitsevalle terassialueelle on käynti suoraan keittiöstä. Osa terassista on katettu, ja siihen on mahdollista lisätä lasitus. Näin SAGAssa voi nauttia ympäröivästä luonnosta niin sateella kuin auringonpaisteellakin.
Talo voidaan rakentaa joko massiivihirrestä tai CLT-elementeistä. Jokaista taloa, talon pohjapiirros ja kerrosala mukaan lukien, voidaan muokata asiakkaan toiveiden ja tarpeiden mukaan.
Tervetuloa Finnlogin maksuttomaan konsultaatiotapaamiseen!















