CLT-TALOT

Villa Modi

Kompakti kaupunkikoti neljän - viiden henkilön perheelle. Katemateriaalin jatkuminen julkisivussa ja kattoikkunat tuovat persoonallista ilmettä tähän taloon.

Katso lisää

Villa Ülgen

Ülgen on harkittu kokonaisuus, joka koostuu päärakennuksesta ja erillisestä saunarakennuksesta. Sisä- ja ulkotilat yhdistyvät siinä lähes katkeamattomaksi jatkumoksi erilaisten terassien sekä näyttävän lasiseinän ansiosta.

Katso lisää

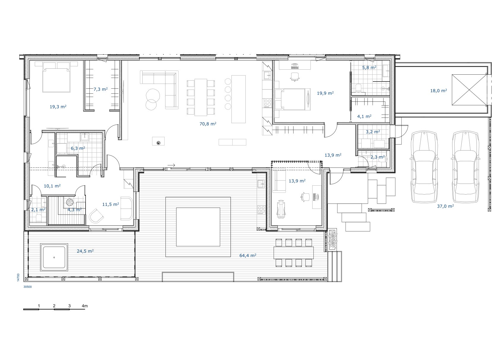
Villa Skanda

Skanda tarjoaa runsaasti erilaisia mahdollisuuksia viettää yhteistä laatuaikaa perheen kanssa. Myös asukkaiden yksityisyys on otettu huomioon suunnittelussa.

Katso lisää

Villa Thetis

Koti, jossa tunnet olevasi luonnon syleilyssä. Tästä talosta avautuvat upeat näkymät ympäröivään luontoon.

Katso lisää

Villa Nyx

Ylellinen kaksiosainen asuinrakennus isolle perheelle. Rakennuksen sydän on avoin ja tilava olohuone, jota ympäröivät lasipinnat terassille.

Katso lisää

Villa Ilma

Yksikerroksinen CLT-elementeistä rakennettu talomalli Ilma on tilava asuinrakennus 2,9 m huonekorkeudella. Tämä omakotitalo sopii esimerkiksi nelihenkiselle perheelle.

Katso lisää

Villa Aruna

Aruna on yksikerroksinen CLT-elementtitalo, jonka pihan puoleinen julkisivu isoine lasipintoineen tarjoaa kauniin näköalan lähiympäristöön peräti 180 asteen leveydeltä. 

Katso lisää

Villa Eirene

Villa Eirenen pohjaratkaisu on jaettu kahteen vyöhykkeeseen - toisella puolella ovat erilliset makuuhuoneet ja toisella tilava olohuone ja keittiö.

Katso lisää

Villa Lucia

Lucia on ulkomuodoltaan tasakattoinen, L-muotoinen yksikerroksinen talo. Tämän talon katseenvangitsija on tilava ja valoisa oleskelu- ja ruokailutila, josta on käynti terassille.

Katso lisää

Villa Beyla

Beyla on minimalistisen moderni kapearunkoinen CLT-talo, joka sopii vaikkapa kapealle tontille kaupunkiympäristöön. Korkea olohuonetila ja suuret ikkunat antavat oleskelutiloille avaruutta.

Katso lisää

Villa Colleda

Rakennus on kubistinen ja selkeälinjainen CLT-elementeistä rakennettu talomalli. Olohuone, ruokailutila ja keittiö muodostavat yhtenäisen valoisan oleskelutilan.

Katso lisää

Villa Kronos

Kronos on talomalli, jonka suunnittelussa on huomioitu sen soveltuvuus kaupunkitilaan ja kapeammallekin tontille. Talo on kaksikerroksinen, rakenteeltaan siro, ja siihen on lähellä pääovea yhdistetty matalampi autokatos, jota jatkamalla voi tarvittaessa rakentaa toisenkin autopaikan tai vaikka suljetun vajan.

Katso lisää

Villa Hetena

Hetena on nykyaikainen tulkinta perinteisestä atriumtalosta, jossa talon tilat kiertävät rakennuksen keskelle rajautuvaa sisäpihaa.

Katso lisää

Villa Clota

Clota on veistoksellinen, kaksikerroksinen CLT-talo.

Katso lisää

Villa Amma

Amma on muotoilultaan selkeä CLT-talo, jossa on jyrkkä harjakatto. Punamullan väri ja asuinrakennuksen tumman harmaa hirsi muodostavat julkisivun, joka hakee vaikutteita perinteisestä hirsirakentamisesta modernilla twistillä.

Katso lisää

Villa Rheda

Rheda on perinteistä suomalaista rintamamiestaloa nykyaikaisen puuarkkitehtuurin keinoin tulkitseva kompakti kaksikerroksinen kaupunkipientalo.

Katso lisää

Villa Canopus

Villa Canopus on CLT-talo, jossa yhdistyvät suorat muodot ja ulkonevat osat. Talo on suunniteltu kaupunkiolosuhteisiin.

Katso lisää