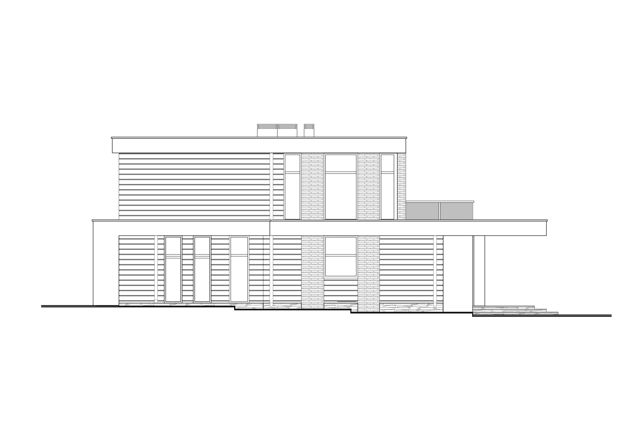
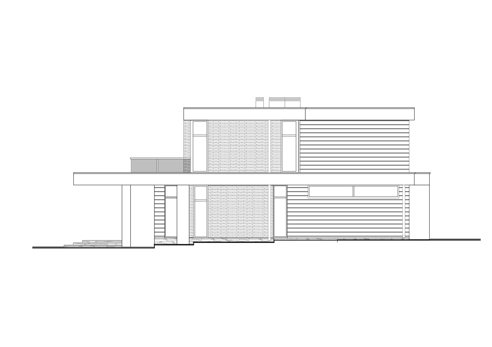
Lavryn on tilava ja ylellinen kaksikerroksinen massiivipuutalo, jossa on puun lisäksi myös metallia ja luonnonkiveä. Nämä materiaalit täydentävät toisiaan harmonisesti, minkä ansiosta talo sulautuu hyvin ympäristöönsä.
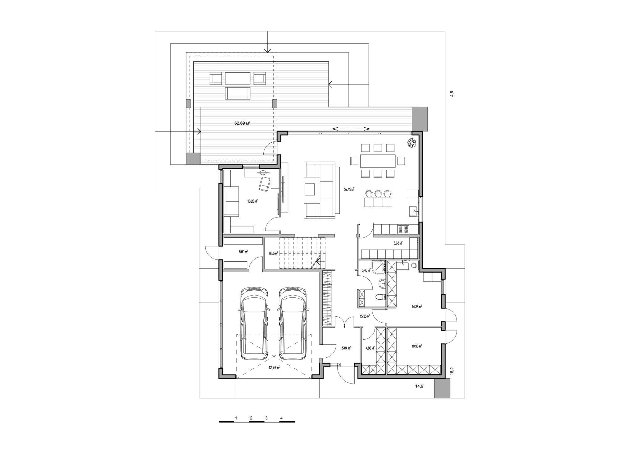
Tilava olohuone jakautuu kolmeen osaan: seurustelu- ja rentoutumisalue yhdistyy keittiö- ja ruokailutilaan. Olohuoneesta on yhteys myös työhuoneeseen. Eteishallista pääsee kahden auton autotalliin sekä kodinhoitohuoneeseen.
Hallin kautta on kulku vaatehuoneeseen, kylpyhuoneeseen ja kodinhoitohuoneeseen. Ensimmäisestä kerroksesta löytyy myös tekninen tila, johon on oma sisäänkäynti suoraan kadulta. Olohuoneesta avautuu kulku sisäpihan tilavalle terassille.
Toisessa kerroksessa on kolme makuuhuonetta sekä kuntosali. Päämakuuhuoneessa on oma vaatehuone, kylpyhuone sekä käynti suurelle näköalaterassille.
Talo sopii täydellisesti metsäiseen ympäristöön puiden keskelle tai vehreälle esikaupunkialueelle.
Talo voidaan rakentaa joko massiivihirrestä tai CLT-elementeistä. Jokaista taloa, talon pohjapiirros ja kerrosala mukaan lukien, voidaan muokata asiakkaan toiveiden ja tarpeiden mukaan.
Tervetuloa Finnlogin maksuttomaan konsultaatiotapaamiseen!

































