Villa Pitkä-lyhyt-pitkä on lämmin ja turvallinen paikka, jossa puumateriaalin runsas käyttö luo rauhallisen tunnelman.
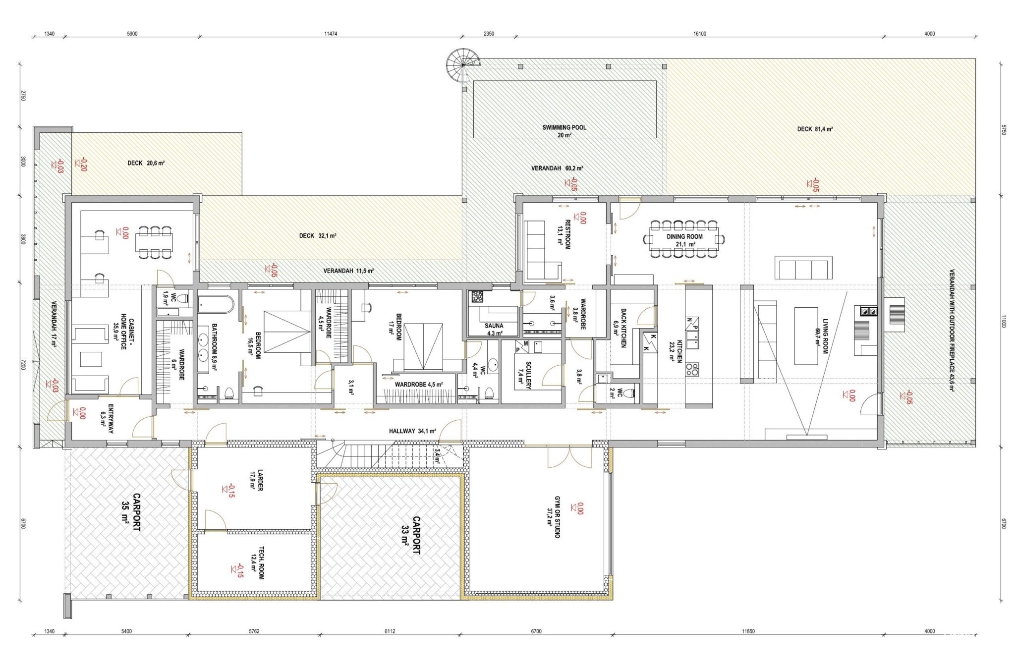
Taloa halkoo käytävä, jossa aurinkoisella puolella sijaitsevat asuintilat ja varjoisella puolella tekniset tilat ja kodinhoitohuone. Erillisiä huoneita voidaan lisätä tai lattiatilaa kasvattaa asiakkaan tarpeiden mukaan.
Käytävän pituutta voi muokata kodin omistajan toiveiden ja tarpeiden mukaan. Käytävää pidennetään tai lyhennetään haluamasi huonemäärän ja lattiatilan mukaan. Olohuoneen ja keittiö koko on myös säädettävissä.
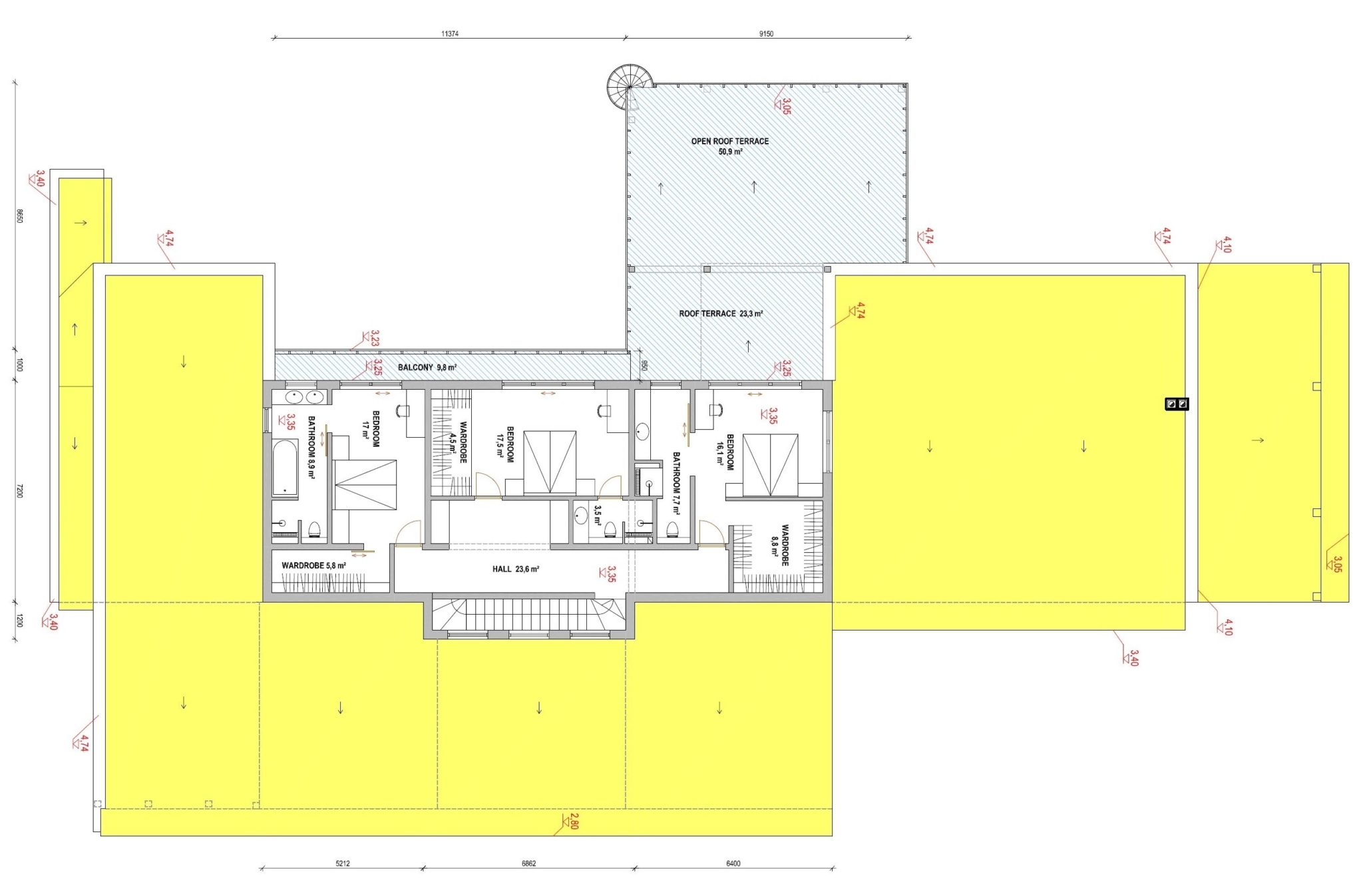
Aikaisessa vaiheessa suunnittelua talosta voi tehdä kaksikerroksisen. Portaikon voi lisätä esimerkiksi käytävän reunaan ja toisen kerroksen kokoa voidaan säätää omistajan toiveen mukaan.
Sauna, keittiö ja olohuone avautuvat terasseille. Terassit saa niin katollisina kuin ilman, ne toimivat hyvänä jatkeena talolle.
Terassien suunnittelulla tuetaan tontin maisemointia. Puut, pensaat ja muut kasvit reunustavat terassia. Terassille on suunniteltu uima-allas, altaan mittoja voidaan muuttaa omistajan toiveiden ja uima-altaan tekniikan mukaan.
Olohuoneen ulkoseinän vastakkaisella puolella on kattoterassi.
Lakattu, tummanharmaa ja päällystetty katto on toteutettu toispuoleisella kaltevuudella.
Talon on suunnitellut arkkitehti Signe Olop.
Suunnittelupalvelu voi muokata taloa asiakkaan toiveiden mukaan.
Talo voidaan rakentaa joko massiivihirrestä tai CLT-elementeistä. Jokaista taloa, talon pohjapiirros ja kerrosala mukaan lukien, voidaan muokata asiakkaan toiveiden ja tarpeiden mukaan.
Tervetuloa Finnlogin maksuttomaan konsultaatiotapaamiseen!











