Theodor on tilava ja moderni kaksikerroksinen massiivipuutalo, jonka rakentamisessa on käytetty puun lisäksi myös metallia ja kiveä. Näiden elementtien harmoninen yhdistelmä sulauttaa talon saumattomasti ympäröivään luontoon, luoden viihtyisän, ylellisen ja tasapainoisen ilmapiirin.
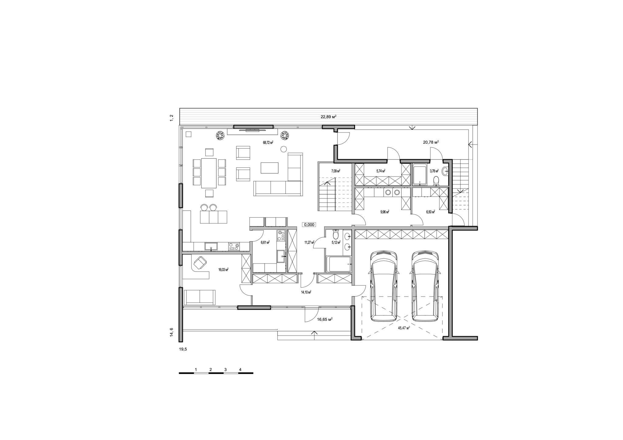
Tilava olohuone jakaantuu kolmeen alueeseen: rentoutumis- ja seurustelutila yhdistyy sujuvasti keittiö- ja ruokailutilaan, josta on erillinen kulku apukeittiöön. Sisäänkäynnin yhteydessä on pääsy kahden auton autotalliin. Eteisestä on myös kulku kylpyhuoneeseen, kodinhoitohuoneeseen ja tekniseen tilaan, josta on oma uloskäynti. Olohuoneesta pääsee viihtyisälle sisäpihan terassille. Eteisestä on lisäksi yhteys työhuoneeseen. Tässä kerroksessa on myös erillinen kylpyhuone, josta pääsee terassille, sekä varastotila.
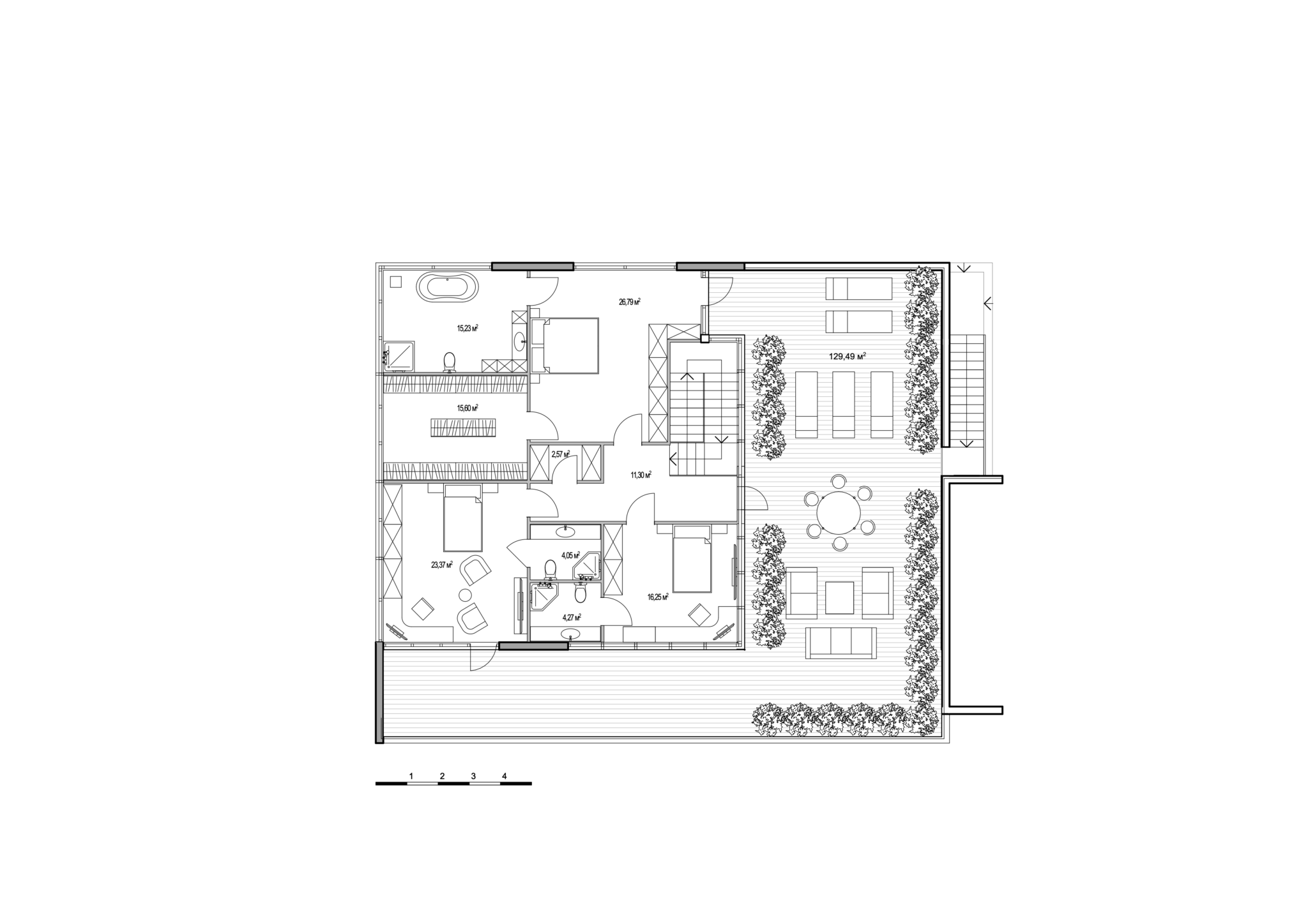
Toisessa kerroksessa sijaitsevat kolme makuuhuonetta, joista jokaisessa on oma kylpyhuone. Päämakuuhuoneessa on lisäksi oma vaatehuone. Yläaulan kautta pääsee panoraamaterassille, jolta avautuvat upeat maisemat.
Arkkitehtuurinsa ansiosta tämä talo sopii täydellisesti metsäiseen ympäristöön, kumpuilevaan maastoon tai vehreään esikaupunkimaisemaan.
Talo voidaan rakentaa joko massiivihirrestä tai CLT-elementeistä. Jokaista taloa, talon pohjapiirros ja kerrosala mukaan lukien, voidaan muokata asiakkaan toiveiden ja tarpeiden mukaan.
Tervetuloa Finnlogin maksuttomaan konsultaatiotapaamiseen!































